Казань, ул. Тукая 77
Пн-пт с 08:00 до 21:00

Под сферу услуг 207 м2 ID: J10595

Казань, Вахитовский, улица Галиаскара Камала, д.4а
Площадь 207 м²
Этаж 2 из 4
Материал Административное здание

Описание

Сдается помещение с отдельным входом на 2 ом этаже , площадью 207 м2 в бизнес-центре, который расположен в исторической части города в Вахитовском районе на улице Галиаскара Камала.


Цена указана с НДС


Отдельный вход с первой линии на первом этаже 40 кв.м.


На втором этаже основная площадь.


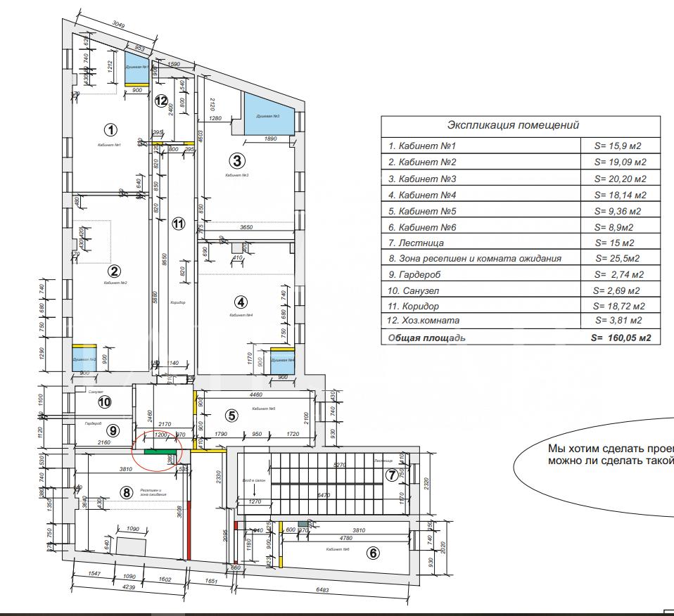
На полу паркет, пол с обогревом. В каждой комнате! проведена вода, имеются душевые кабины. Был салон Thai массажа.


Современное здание, класса В+, парковка крытая более 60 мест.


Кондиционеры в каждой комнате всего 6 комнат+ ресепшн.


В кабинетах выполнен качественный ремонт,подведены все инженерные коммуникации, система ОПС, СКС, интернет, телефония, система вентиляции и кондиционирования,обеденная комната.


В каждой комнате подведены вода и канализация(мокрые точки )


Имеются парковочные места. Возможна аренда парковочных мест на надземном паркинге за зданием.


Удобная транспортная развязка.


Подробнее

Характеристики

  • Тип недвижимости Коммерческая
  • Населенный пункт Казань
  • Район Вахитовский
  • Адрес улица Галиаскара Камала, д.4а
  • Стоимость заМесяц
  • Вид объекта Помещение свободного назначения
  • Обязательно для заполнения: доп. 2 категории Офис, Торговое помещение
  • Тип аренды (прямая/субаренда) Прямая
  • Общая площадь 207 м²
  • Этаж 2
  • Этажность дома 4
  • Отопление Центральное
  • Лифт нет
  • Вход С улицы
  • Планировка Кабинетная
  • Отделка Чистовая
  • Тип здания Административное здание
  • Тип парковки В здании
  • Право собственности Собственник
  • Удаленность от дороги Первая линия
  • Статус земли Участок промышленности, транспорта, связи и иного не сельхоз. назначения
  • Высота потолка в метрах 3
Задать вопрос


Вас также может заинтересовать:
5
Первая линия
Общепит-кафе
ПСН 107,5 кв.м. на первой линии в новом ЖК Кастура Таун
Казань, улица Островского, д.105
Вахитовский
376 250 / месяц
  • Вид объекта:Торговое помещение
  • Тип аренды (прямая/субаренда):Прямая
  • Общая площадь:107.5 м²
  • Этаж:1
5
Первая линия
Общепит-кафе
ПСН 113,2 кв.м. на первой линии в новом ЖК Кастура Таун
Казань, улица Островского, д.105
Вахитовский
396 200 / месяц
  • Вид объекта:Торговое помещение
  • Тип аренды (прямая/субаренда):Прямая
  • Общая площадь:113.2 м²
  • Этаж:1
10
Тёплый склад 720м
Казань, улица Южно-Промышленная, д.1
Приволжский
420 000 / месяц
  • Вид объекта:Складское помещение
  • Тип аренды (прямая/субаренда):Прямая
  • Общая площадь:700 м²
  • Этаж:1

Мы используем файлы cookie, чтобы обеспечить вам наилучший доступ к нашему веб-сайту

Скопировано