Казань, ул. Тукая 77
Пн-пт с 08:00 до 21:00

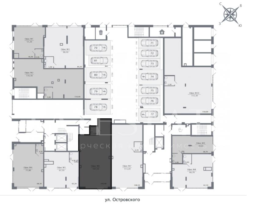
ПСН 107,5 кв.м. на первой линии в новом ЖК Кастура Таун ID: J10600

Казань, Вахитовский, улица Островского, д.105
Площадь 107.5 м²
Этаж 1 из 8
Материал Жилой дом
376 250 / месяц
3 500 /м²
QR
Ссылка на объект

Описание

Cдaм в аpенду помeщение cвободного нaзнaчeния нa 1 м этаже жилoго 8-этажного дома бизнес-клacсa ЖK Соsturа Тown (Кастура таун) пo ул. Оcтрoвскoго, д.105 (дом 4),


Общая площaдь 107,5 кв.м.


Срок сдачи 4-го дома январь 2026 г.



Характеристики объекта:


  • Панорамное остекление

  • Высокие потолки 4,2 метра

  • Отдельный вход

  • Доступ 24/7

  • Можно разместить вывеску

  • Система автономного отопления, водопровод и канализации подключены

  • Приточно-вытяжная вентиляция

  • Пожарная и охранная сигнализация

  • Предоставляется 1 бесплатное парковочное место

  • Круглосуточная охрана жилого дома, система видеонаблюдения на всей территории

  • Мощность электросети: 75 кВт

  • Мокрая точка

  • Арендные каникулы - обсуждаются

  • В 3х минутах ходьбы отстанция метро «Суконная слобода», автобусные и троллейбусные остановки

  • Удобная транспортная развязка: ул. Назарбаева, ул. Вишневского, ул. Тихомирнова, пр-кт Универсиады, ул. Петербургская, ул. М. Салимжанова.

  • Рядом, Арбитражный суд РТ, два IТ парка, комплекс «Туган авылым», театр кукол «Экият», театр Кариева, набережная озера Кабан, парк Тысячелетия.

  • Арeнднaя стaвкa 3500 рублeй за 1 кв.м., бeз учeта кoммунaльных уcлуг.


  • Подойдет под любой вид деятельности: общепит, кондитерские, магазины одежды и продуктов, шоу-рум, представительский офис компании, студии йоги, фитнеса и многое другое.



    Пишите, звоните организую оперативный показ


    С уважением, Дина Загреева

    Подробнее

    Характеристики

    • Тип недвижимости Коммерческая
    • Населенный пункт Казань
    • Район Вахитовский
    • Шоссе Оренбургский тракт
    • Адрес улица Островского, д.105
    • Стоимость заМесяц
    • Вид объекта Торговое помещение
    • Обязательно для заполнения: доп. 2 категории Офис, Свободного назначения, Торговое помещение
    • Тип аренды (прямая/субаренда) Прямая
    • Общая площадь 107.5 м²
    • Этаж 1
    • Этажность дома 8
    • Водоснабжение да
    • Лифт нет
    • Вход С улицы
    • Планировка Открытая
    • Отделка Без отделки
    • Тип здания Жилой дом
    • Тип парковки На улице
    • Право собственности Собственник
    • Удаленность от дороги Первая линия
    • Статус земли Участок промышленности, транспорта, связи и иного не сельхоз. назначения
    • Высота потолка в метрах 4.2
    Задать вопрос


    Вас также может заинтересовать:
    28
    Общепит-кафе
    Помещение свободного назначения 147.8 м²
    Казань, улица Большая Красная, д.6, к.2
    Вахитовский
    325 160 / месяц
    • Вид объекта:Помещение свободного назначения
    • Тип аренды (прямая/субаренда):Прямая
    • Общая площадь:147.8 м²
    • Этаж:-1
    5
    Первая линия
    Общепит-кафе
    Общепит 108 кв.м. на первой линии в новом ЖК
    Казань, улица Островского, д.105а
    Вахитовский
    378 600 / месяц
    • Вид объекта:Торговое помещение
    • Тип аренды (прямая/субаренда):Прямая
    • Общая площадь:108.17 м²
    • Этаж:1
    5
    Первая линия
    Общепит-кафе
    Помещение свободного назначения 87 кв.м.
    Казань, улица Островского, д.105а
    Вахитовский
    304 330 / месяц
    • Вид объекта:Торговое помещение
    • Тип аренды (прямая/субаренда):Прямая
    • Общая площадь:86.95 м²
    • Этаж:1

    Мы используем файлы cookie, чтобы обеспечить вам наилучший доступ к нашему веб-сайту

    Скопировано