Казань, ул. Тукая 77
Пн-пт с 08:00 до 21:00

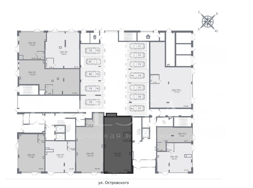
ПСН 113,2 кв.м. на первой линии в новом ЖК Кастура Таун ID: J10601

Казань, Вахитовский, улица Островского, д.105
Площадь 113.2 м²
Этаж 1 из 8
Материал Жилой дом
396 200 / месяц
3 500 /м²
QR
Ссылка на объект

Описание

Cдaм в аpенду помeщение cвободного нaзнaчeния нa 1 м этаже жилoго 8-этажного дома бизнес-клacсa ЖK Соsturа Тown пo ул. Оcтрoвскoго, д.105 (дом 4),


Общая площaдь 113,2 кв.м.


Срок сдачи 4-го дома январь 2026 г.



Характеристики объекта:


  • Панорамное остекление

  • Высокие потолки 4,2 метра

  • Отдельный вход

  • Доступ 24/7

  • Можно разместить вывеску

  • Система автономного отопления, водопровод и канализации подключены

  • Приточно-вытяжная вентиляция

  • Пожарная и охранная сигнализация

  • Предоставляется 1 бесплатное парковочное место

  • Круглосуточная охрана жилого дома, система видеонаблюдения на всей территории

  • Мощность электросети: 75 кВт

  • Мокрая точка

  • Арендные каникулы - обсуждаются

  • В 3х минутах ходьбы отстанция метро «Суконная слобода», автобусные и троллейбусные остановки

  • Удобная транспортная развязка: ул. Назарбаева, ул. Вишневского, ул. Тихомирнова, пр-кт Универсиады, ул. Петербургская, ул. М. Салимжанова.

  • .

  • Арeнднaя стaвкa 3500 рублeй за 1 кв.м., бeз учeта кoммунaльных уcлуг.


  • Подойдет под любой вид деятельности: общепит, кондитерские, магазины одежды и продуктов, шоу-рум, представительский офис компании, студии йоги, фитнеса и многое другое.



    Пишите, звоните организую оперативный показ


    С уважением, Дина Загреева

    Подробнее

    Характеристики

    • Тип недвижимости Коммерческая
    • Населенный пункт Казань
    • Район Вахитовский
    • Шоссе Оренбургский тракт
    • Адрес улица Островского, д.105
    • Стоимость заМесяц
    • Вид объекта Торговое помещение
    • Обязательно для заполнения: доп. 2 категории Офис, Свободного назначения, Торговое помещение
    • Тип аренды (прямая/субаренда) Прямая
    • Общая площадь 113.2 м²
    • Этаж 1
    • Этажность дома 8
    • Водоснабжение да
    • Лифт нет
    • Вход С улицы
    • Планировка Открытая
    • Отделка Без отделки
    • Тип здания Жилой дом
    • Тип парковки На улице
    • Право собственности Собственник
    • Удаленность от дороги Первая линия
    • Статус земли Участок промышленности, транспорта, связи и иного не сельхоз. назначения
    • Высота потолка в метрах 4.2
    Задать вопрос


    Вас также может заинтересовать:
    5
    Первая линия
    Общепит-кафе
    ПСН 107,5 кв.м. на первой линии в новом ЖК Кастура Таун
    Казань, улица Островского, д.105
    Вахитовский
    376 250 / месяц
    • Вид объекта:Торговое помещение
    • Тип аренды (прямая/субаренда):Прямая
    • Общая площадь:107.5 м²
    • Этаж:1
    36
    427.2 кв.м ПСН по НЕ ПРОДУКТОВЫЙ РИТЕЙЛ 70 кВт, 2 этаж на Кулахметова
    Казань, улица Кулахметова, д.20

    320 400 / месяц
    • Вид объекта:Торговое помещение
    • Тип аренды (прямая/субаренда):Прямая
    • Общая площадь:427.2 м²
    • Этаж:2
    5
    Отдельный вход
    24/7 доступ
    Помещение свободного назначения 132.7 м²
    Казань, улица Гвардейская, д.54е
    Советский
    300 000 / месяц
    • Вид объекта:Помещение свободного назначения
    • Тип аренды (прямая/субаренда):Прямая
    • Общая площадь:132.7 м²
    • Этаж:1

    Мы используем файлы cookie, чтобы обеспечить вам наилучший доступ к нашему веб-сайту

    Скопировано