Казань, ул. Тукая 77
Пн-пт с 08:00 до 21:00

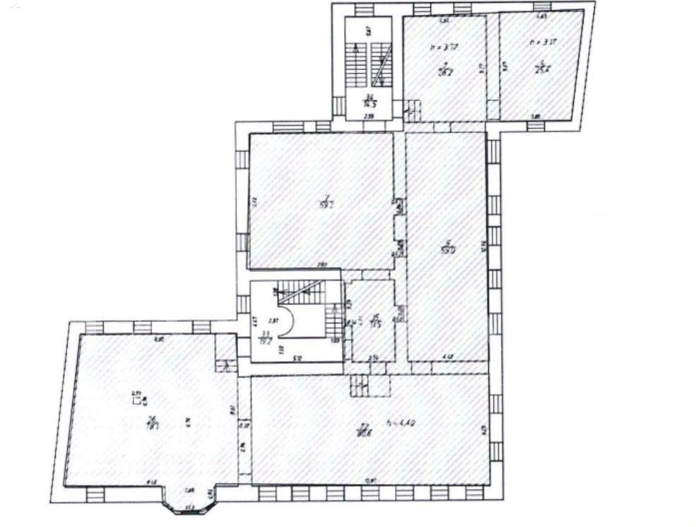
Помещение свободного назначения 336 кв.м. ID: J10446

Казань, Вахитовский, улица Габдуллы Тукая, д.84
Площадь 336 м²
Этаж 2 из 2
Материал Другой
436 800 / месяц
1 300 /м²
Мирослав Федотов Мирослав Федотов
Специалист по коммерческой недвижимости
Показать телефон miroslav@tat-estate.ru
QR
Ссылка на объект

Описание

Предложение от собственника!

Предлагаем в аренду помещение 336 кв.м.

- доступ 24/7;
- свой вход;
- высокие потолки от 3.3 до 4.4 м.;
- пожарная сигнализация;
- возможность размещения вывески;
- оплата коммунальных услуг оплачивается отдельно;
- хороший ремонт и большие окна (много света).

Характеристики

  • Тип недвижимости Коммерческая
  • Населенный пункт Казань
  • Район Вахитовский
  • Адрес улица Габдуллы Тукая, д.84
  • Стоимость заМесяц
  • Вид объекта Помещение свободного назначения
  • Обязательно для заполнения: доп. 2 категории Свободного назначения
  • Тип аренды (прямая/субаренда) Прямая
  • Общая площадь 336 м²
  • Этаж 2
  • Этажность дома 2
  • Отопление Центральное
  • Водоснабжение да
  • Лифт нет
  • Вход Со двора
  • Планировка Кабинетная
  • Отделка Чистовая
  • Тип здания Другой
  • Тип парковки На улице
  • Право собственности Собственник
  • Удаленность от дороги Первая линия
  • Статус земли Поселений
  • Высота потолка в метрах 4
Задать вопрос


Вас также может заинтересовать:
5
Первая линия
Общепит-кафе
ПСН 107,5 кв.м. на первой линии в новом ЖК Кастура Таун
Казань, улица Островского, д.105
Вахитовский
376 250 / месяц
  • Вид объекта:Торговое помещение
  • Тип аренды (прямая/субаренда):Прямая
  • Общая площадь:107.5 м²
  • Этаж:1
5
Первая линия
Общепит-кафе
Общепит 108 кв.м. на первой линии в новом ЖК
Казань, улица Островского, д.105а
Вахитовский
378 600 / месяц
  • Вид объекта:Торговое помещение
  • Тип аренды (прямая/субаренда):Прямая
  • Общая площадь:108.17 м²
  • Этаж:1
8
Помещение свободного назначения 284,7 кв.м.
Казань, улица Саид-Галеева, д.6
Вахитовский
400 000 / месяц
  • Вид объекта:Помещение свободного назначения
  • Тип аренды (прямая/субаренда):Прямая
  • Общая площадь:284 м²
  • Этаж:1

Мы используем файлы cookie, чтобы обеспечить вам наилучший доступ к нашему веб-сайту

Скопировано