Казань, ул. Тукая 77
Пн-пт с 08:00 до 21:00

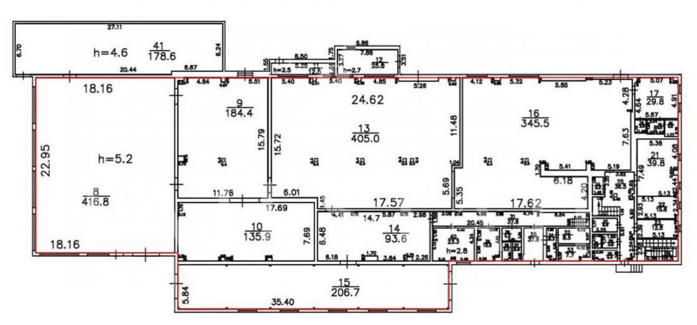
Производственно-складское 700 кв.м. ID: J10005

Казань, Московский, улица Рахимова, д.57Д
490 000 / месяц
700 /м²
Мирослав Федотов Мирослав Федотов
Специалист по коммерческой недвижимости
Показать телефон miroslav@tat-estate.ru
QR
Ссылка на объект

Описание

Предложение от собственника!

Предлагаем производственно-складской комплекс 700 кв.м.

- доступ 24/7;
- э/э мощность 50 квт.;
- установлены стеллажи;
- коммуникации центральные;
- полы антипыль;
- много ворот;
- есть нулевые ворота, есть пандус;
- высота потолков 5.6м.;
- бесплатная парковка;
- сан.узел.
- есть офисные помещения.

Характеристики

  • Тип недвижимости Коммерческая
  • Населенный пункт Казань
  • Район Московский
  • Адрес улица Рахимова, д.57Д
  • Стоимость заМесяц
  • Вид объекта Складское помещение
  • Обязательно для заполнения: доп. 2 категории Свободного назначения, Производство
  • Тип аренды (прямая/субаренда) Прямая
  • Общая площадь 700 м²
  • Этаж 1
  • Этажность дома 1
  • Отопление Автономное
  • Лифт нет
  • Вход С улицы
  • Планировка Открытая
  • Отделка Чистовая
  • Тип здания Другой
  • Тип парковки На улице
  • Право собственности Собственник
  • Статус земли Участок промышленности, транспорта, связи и иного не сельхоз. назначения
  • Высота потолка в метрах 5.6
Задать вопрос


Вас также может заинтересовать:
5
Первая линия
Общепит-кафе
ПСН 107,5 кв.м. на первой линии в новом ЖК Кастура Таун
Казань, улица Островского, д.105
Вахитовский
376 250 / месяц
  • Вид объекта:Торговое помещение
  • Тип аренды (прямая/субаренда):Прямая
  • Общая площадь:107.5 м²
  • Этаж:1
5
Первая линия
Общепит-кафе
ПСН 113,2 кв.м. на первой линии в новом ЖК Кастура Таун
Казань, улица Островского, д.105
Вахитовский
396 200 / месяц
  • Вид объекта:Торговое помещение
  • Тип аренды (прямая/субаренда):Прямая
  • Общая площадь:113.2 м²
  • Этаж:1
10
Тёплый склад 720м
Казань, улица Южно-Промышленная, д.1
Приволжский
420 000 / месяц
  • Вид объекта:Складское помещение
  • Тип аренды (прямая/субаренда):Прямая
  • Общая площадь:700 м²
  • Этаж:1

Мы используем файлы cookie, чтобы обеспечить вам наилучший доступ к нашему веб-сайту

Скопировано