Казань, ул. Тукая 77
Пн-пт с 08:00 до 21:00

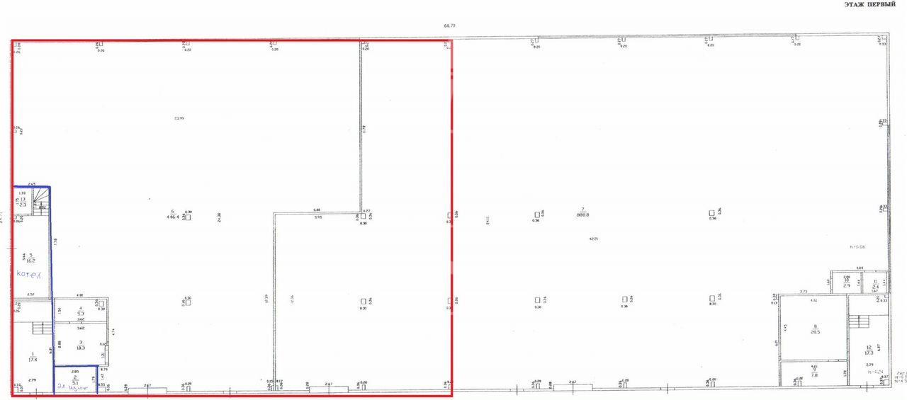
Склад с офисом 867 м2 на Амирхана ID: J10662

Казань, Ново-Савиновский, улица Фатыха Амирхана, д.50
Площадь 867 м²
Этаж 1 из 2
Материал Другой
867 000 / месяц
1 000 /м²
QR
Ссылка на объект

Описание

Cдaется в аpенду склад В классa с офисом нa теppитopии складскoгo кoмплeкcа в городе Казань Ново-Савиновского района по ул. ул. Фатыха Амирхана, 50
Общая площадь - 867м2, из них склад - 690 кв.м. и офис - 177кв.м.
Склад расположен на 1 (первом) этаже с высотой потолка 7 метров.
Офис в отличном состоянии расположен вторым, мезонинным этажом прилегающим к складу. Имеет много окон.
Бетонные полы с антипылевым покрытием и нагрузкой до 6 тонн/м2.
Ворота - автоматические, в ноль, под заезд фуры
База на закрытой, охраняемой территории в удобной локации улиц Петра Виттера и Михаила Миля (охрана 24/7- включена в ставку).
Парковка: на улице, бесплатная, подходит для грузового транспорта
Въезд на базу с ул.Фатыха Амирхана.
Отопление склада индивидуальное, оплата по счетчику.
Стоимость: 1000р/м2 без НДС, отопление , электричество, вода - по счетчикам, канализация - септик, интернет - оптика.
Эксплуатационные платежи, в том числе уборка снега - включены в постоянную ставку аренды.
Срок аренды от 11 мес.
Склад сдается только с офисом! Заезд - по договоренности.
Подробнее

Характеристики

  • Тип недвижимости Коммерческая
  • Населенный пункт Казань
  • Район Ново-Савиновский
  • Шоссе Горьковское шоссе
  • Адрес улица Фатыха Амирхана, д.50
  • Стоимость заМесяц
  • Вид объекта Складское помещение
  • Обязательно для заполнения: доп. 2 категории Офис, Свободного назначения, Производство
  • Тип аренды (прямая/субаренда) Прямая
  • Общая площадь 867 м²
  • Этаж 1
  • Этажность дома 2
  • Отопление Автономное
  • Водоснабжение да
  • Лифт нет
  • Вход Со двора
  • Планировка Открытая
  • Отделка Чистовая
  • Тип здания Другой
  • Тип парковки На улице
  • Право собственности Посредник
  • Статус земли Участок промышленности, транспорта, связи и иного не сельхоз. назначения
  • Высота потолка в метрах 7
Задать вопрос


Вас также может заинтересовать:
10
Сдается ОСЗ 380 кв в центре
Казань

945 000 / месяц
  • Вид объекта:Помещение свободного назначения
  • Тип аренды (прямая/субаренда):Прямая
  • Общая площадь:378 м²
  • Этаж:2
20
Сдается 400 кв.м с Ремонтом в торгово-офисном здании класса А
Казань, улица Гаврилова, д.3
Ново-Савиновский
840 000 / месяц
  • Вид объекта:Помещение свободного назначения
  • Тип аренды (прямая/субаренда):Прямая
  • Общая площадь:400 м²
  • Этаж:3
25
Производственно-складское помещение 1400 кв.м.
Казань, Республика Татарстан (Татарстан), Зеленодольский район, Осиновское сельское поселение, территория Промышленная Площадка Индустриальный Парк М7

980 000 / месяц
  • Вид объекта:Производственное помещение
  • Тип аренды (прямая/субаренда):Прямая
  • Общая площадь:1400 м²
  • Этаж:1

Мы используем файлы cookie, чтобы обеспечить вам наилучший доступ к нашему веб-сайту

Скопировано