Казань, ул. Тукая 77
Пн-пт с 08:00 до 21:00

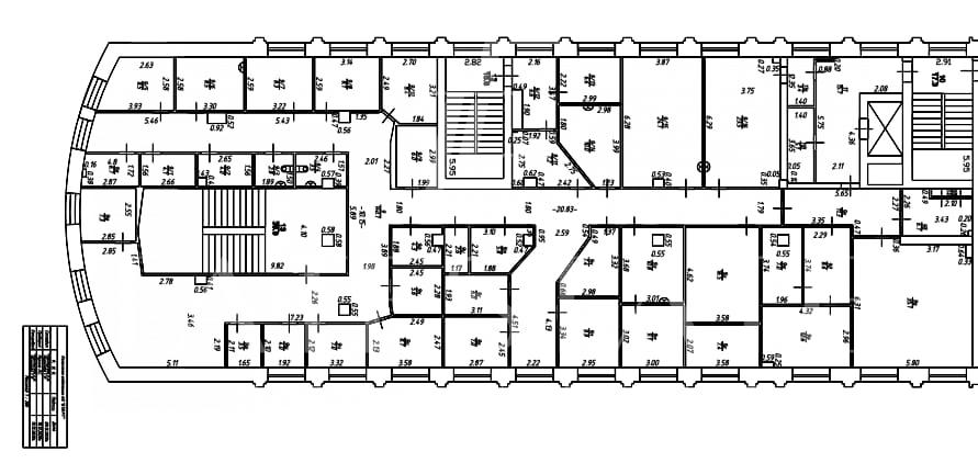
Сдается 555,3 кв.м. в центре кабинетная нарезка ID: J10356

Казань, улица Лево-Булачная, д.30
Площадь 555 м²
Этаж 2 из 6
Материал Бизнес-центр
832 500 / месяц
1 500 /м²
QR
Ссылка на объект

Описание

Сдается помещение на 2 этаже на 1 линии в центре помещение по адресу: ул. Лево-Булачная 30 . Площадь помещения 555,3 кв.м. Ранее был медцентр. Кабинетная нарезка, но перегородки можно демонтировать. Рассматриваем под разные виды деятельности.
В помещении:
— Телефон
— Интернет
— Электричество до 400кВТ
— Отопление
— Охрана
— Проведено водоснабжение
— Доступ 24 часа
— Есть возможность повесить вывеску
— Кондиционер
- Погрузо-разгрузочная зона.
Коммунальные платежи не входят в стоимость
Возле объекта имеется муниципальная парковка
Высота потолка – 3 м
Помещение имеет отдельный вход. находится в непосредственной близости от Татарстан, Пушкина, Кремлевская, московская
Также помещение подойдет под клиника, стоматология, учебный центр, офис,магазин, ресторан, фитнес центр,пищевое производство

Характеристики

  • Тип недвижимости Коммерческая
  • Населенный пункт Казань
  • Адрес улица Лево-Булачная, д.30
  • Стоимость заМесяц
  • Вид объекта Помещение свободного назначения
  • Обязательно для заполнения: доп. 2 категории Офис, Торговое помещение
  • Тип аренды (прямая/субаренда) Прямая
  • Общая площадь 555 м²
  • Этаж 2
  • Этажность дома 6
  • Отопление Центральное
  • Лифт да
  • Вход С улицы
  • Планировка Кабинетная
  • Отделка Чистовая
  • Тип здания Бизнес-центр
  • Тип парковки На улице
  • Право собственности Посредник
  • Удаленность от дороги Первая линия
  • Статус земли Участок промышленности, транспорта, связи и иного не сельхоз. назначения
  • Высота потолка в метрах 3
Задать вопрос


Вас также может заинтересовать:
10
Сдается ОСЗ 380 кв в центре
Казань

945 000 / месяц
  • Вид объекта:Помещение свободного назначения
  • Тип аренды (прямая/субаренда):Прямая
  • Общая площадь:378 м²
  • Этаж:2
20
Сдается 400 кв.м с Ремонтом в торгово-офисном здании класса А
Казань, улица Гаврилова, д.3
Ново-Савиновский
840 000 / месяц
  • Вид объекта:Помещение свободного назначения
  • Тип аренды (прямая/субаренда):Прямая
  • Общая площадь:400 м²
  • Этаж:3
25
Производственно-складское помещение 1400 кв.м.
Казань, Республика Татарстан (Татарстан), Зеленодольский район, Осиновское сельское поселение, территория Промышленная Площадка Индустриальный Парк М7

980 000 / месяц
  • Вид объекта:Производственное помещение
  • Тип аренды (прямая/субаренда):Прямая
  • Общая площадь:1400 м²
  • Этаж:1

Мы используем файлы cookie, чтобы обеспечить вам наилучший доступ к нашему веб-сайту

Скопировано