Казань, ул. Тукая 77
Пн-пт с 08:00 до 21:00

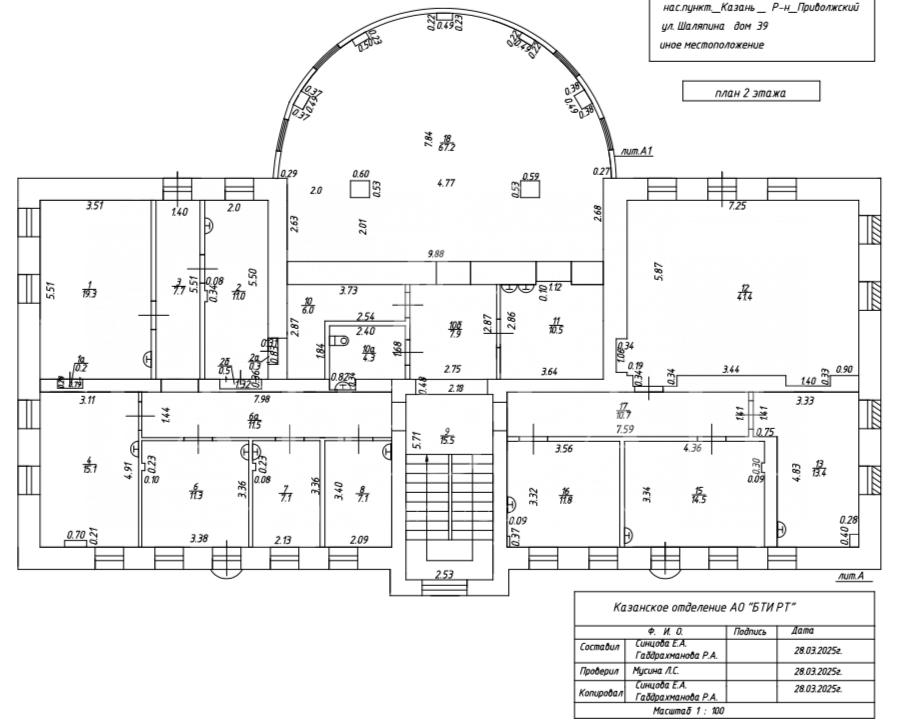
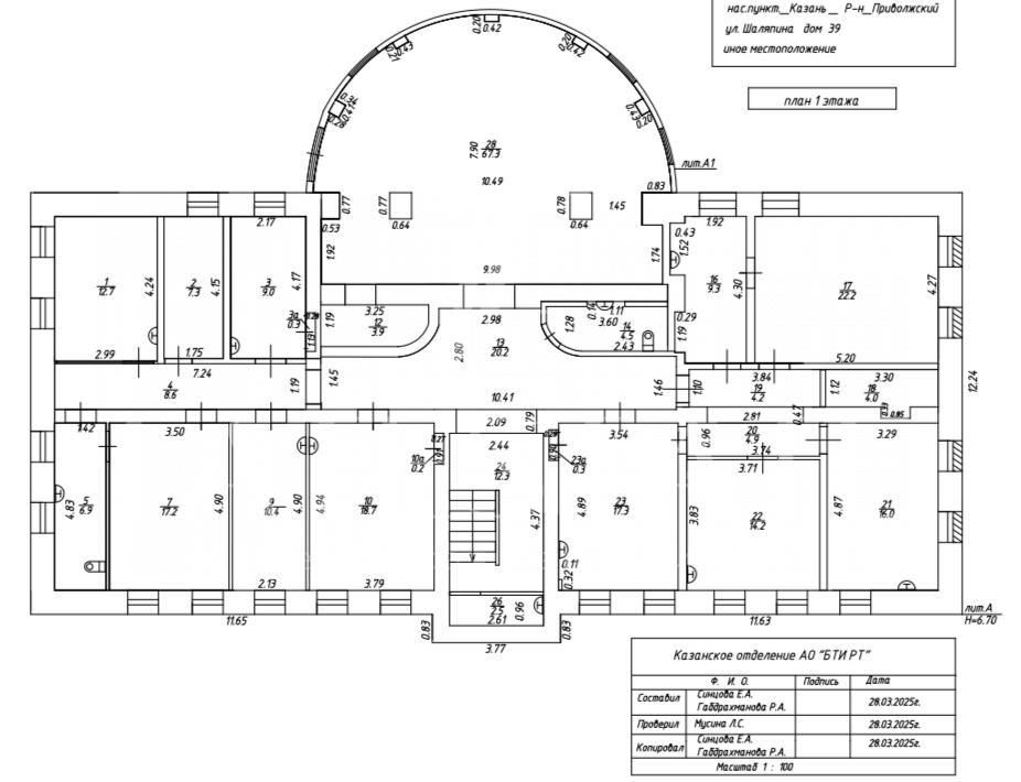
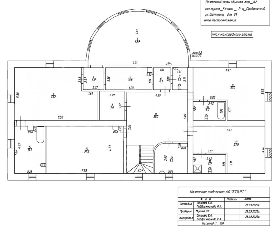
Отдельно стоящее здание 878,4 кв.м. ID: J10402

Казань, Приволжский, улица Шаляпина, д.39
Площадь 878 м²
Этаж 1 из 3
Материал Другой
1 756 000 / месяц
2 000 /м²
Мирослав Федотов Мирослав Федотов
Специалист по коммерческой недвижимости
Показать телефон miroslav@tat-estate.ru
QR
Ссылка на объект

Описание

Предложение от собственника!

Предлагаем в аренду отдельно стоящее здание 878,4 кв.м., можно частями.

- доступ 24/7;
- 1я линия;
- высота потолков 3м.;
- своя парковка на охраняемой территории (15 машин);
- мощность более 50квт.;
- пожарная сигнализация;
- охрана;
- видеонаблюдение;
- много сан.узлов, мокрых точек;
- кондиционеры;
- коммунальные платежи оплачиваются отдельно.

Здание полностью готовое под сдачу для мед. центра, обучающей школы, часть оборудования остается.

Характеристики

  • Тип недвижимости Коммерческая
  • Населенный пункт Казань
  • Район Приволжский
  • Адрес улица Шаляпина, д.39
  • Стоимость заМесяц
  • Вид объекта Помещение свободного назначения
  • Тип аренды (прямая/субаренда) Прямая
  • Общая площадь 878 м²
  • Этаж 1
  • Этажность дома 3
  • Отопление Автономное
  • Лифт нет
  • Вход С улицы
  • Планировка Кабинетная
  • Отделка Офисная
  • Тип здания Другой
  • Тип парковки На улице
  • Право собственности Собственник
  • Удаленность от дороги Первая линия
  • Статус земли Поселений
  • Высота потолка в метрах 3
Задать вопрос


Вас также может заинтересовать:
9
Склад ответственного хранения, низкотемпературный
Казань, Зеленодольский район, Зеленодольск, территория Технополис Новая Тура, 3

2 000 000 / месяц
  • Вид объекта:Складское помещение
  • Тип аренды (прямая/субаренда):Прямая
  • Общая площадь:2000 м²
  • Этаж:1
13
Помещение свободного назначения 660 кв.м. первая линия локация топ
Казань, улица Спартаковская, д.12
Вахитовский
1 320 000 / месяц
  • Вид объекта:Помещение свободного назначения
  • Тип аренды (прямая/субаренда):Прямая
  • Общая площадь:660 м²
  • Этаж:1
19
Общепит-кафе
24/7 доступ
Помещение свободного назначения 909 м²
Казань, улица Нариманова, д.70/1
Вахитовский
1 818 000 / месяц
  • Вид объекта:Помещение свободного назначения
  • Тип аренды (прямая/субаренда):Прямая
  • Общая площадь:909 м²
  • Этаж:1

Мы используем файлы cookie, чтобы обеспечить вам наилучший доступ к нашему веб-сайту

Скопировано