Казань, ул. Тукая 77
Пн-пт с 08:00 до 21:00

Аренда Помещение свободного назначения 909 м² ID: J10644

Казань, Вахитовский, улица Нариманова, д.70/1
Площадь 909 м²
Этаж 1 из 3
Материал Административное здание
1 818 000 / месяц
2 000 /м²
QR
Ссылка на объект

Описание

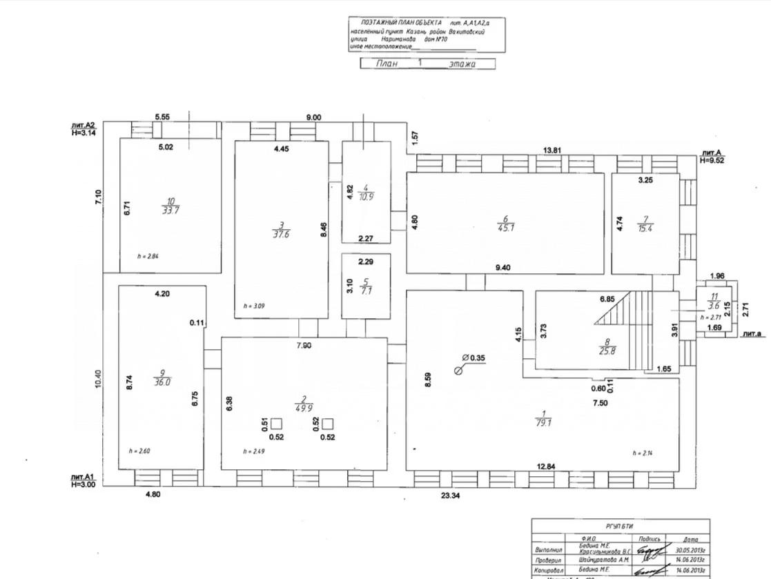
Сдается трехэтажное здание на первой линии по ул. Нариманова.
Помещения полностью готовые под ресторан -общепит, кальянную.
Террасы, барные стойки, оборудованные кухни, холодильник, вытяжка, несколько входов, своя зона разгрузки-погрузки.
Первый этаж - 344.2 кв.м. с террасой.
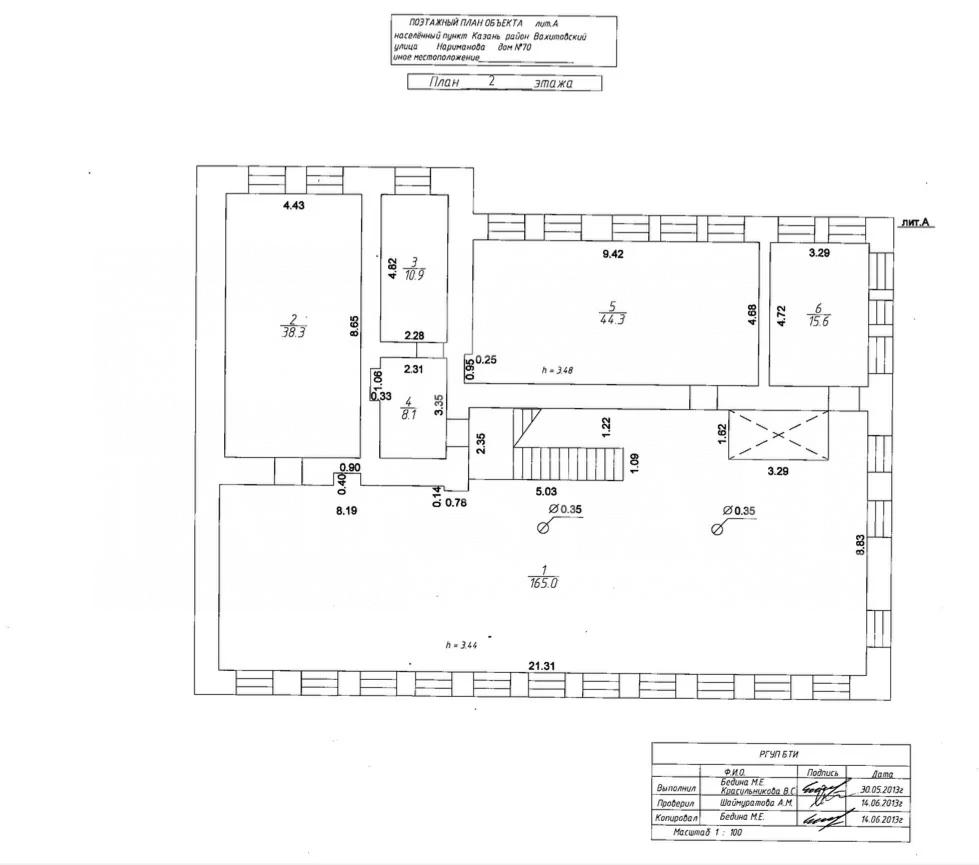
Второй этаж -282.2 кв.м. с террасой. Имеется офисная часть.
Третий этаж - 282.6 кв.м.
Сдаются либо целиком, либо 1 и 2 этаж совместно, третий отдельно-вход со двора.

Характеристики

  • Тип недвижимости Коммерческая
  • Населенный пункт Казань
  • Район Вахитовский
  • Адрес улица Нариманова, д.70/1
  • Стоимость заМесяц
  • Вид объекта Помещение свободного назначения
  • Обязательно для заполнения: доп. 2 категории Офис, Торговое помещение
  • Тип аренды (прямая/субаренда) Прямая
  • Общая площадь 909 м²
  • Этаж 1
  • Этажность дома 3
  • Отопление Автономное
  • Водоснабжение да
  • Лифт нет
  • Вход Со двора
  • Планировка Открытая
  • Отделка Чистовая
  • Тип здания Административное здание
  • Тип парковки На улице
  • Право собственности Собственник
  • Удаленность от дороги Первая линия
  • Статус земли Поселений
  • Высота потолка в метрах 3
Задать вопрос


Вас также может заинтересовать:
9
Склад ответственного хранения, низкотемпературный
Казань, Зеленодольский район, Зеленодольск, территория Технополис Новая Тура, 3

2 000 000 / месяц
  • Вид объекта:Складское помещение
  • Тип аренды (прямая/субаренда):Прямая
  • Общая площадь:2000 м²
  • Этаж:1
11
Здание 1200кв.м
Казань, улица Широкая, д.7
Кировский
1 440 000 / месяц
  • Вид объекта:Здание
  • Тип аренды (прямая/субаренда):Прямая
  • Общая площадь:1200 м²
  • Этаж:1
17
Отдельный вход
24/7 доступ
Отдельно стоящее здание 688 кв.м.
Казань, улица Некрасова, д.32А
Вахитовский
1 376 000 / месяц
  • Вид объекта:Здание
  • Тип аренды (прямая/субаренда):Прямая
  • Общая площадь:688 м²
  • Этаж:1

Мы используем файлы cookie, чтобы обеспечить вам наилучший доступ к нашему веб-сайту

Скопировано