Казань, ул. Тукая 77
Пн-пт с 08:00 до 21:00

Офисы в центре 2 эт. с парковкой ID: J8721

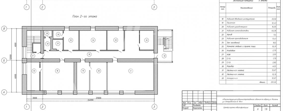
Казань, Вахитовский, улица Островского, д.104
Площадь 251.32 м²
Этаж 2 из 3
Материал Другой
QR
Ссылка на объект

Описание

Продам помещения 2-го этажа в центре города Казань в Вахитовском районе, по ул. Островского 104, площадью 251,32 кв.м.
В стоимость продажи также входит 123 кв.м подвального помещения. подвал в черновом виде, частично засыпан прежним собственником.
Своя парковка, въезд через шлагбаум, территория выложена брусчаткой и огорожена забором.
В кабинетах косметический ремонт.
Высота потолков - 3 м
Третий этаж здания, фасад и дополнительная лестница подлежат реконструкции.

На данный момент здание занимают арендаторы - частная детская поликлиника, с долгосрочными договорами аренды.
Коммунальные услуги (газ, электричество, ХВС и водоотведение) оплачиваются арендаторами отдельно!
МАП по запросу.

Индивидуальный газовый котел расположен в пристрое к зданию (три новых контура отопления, свой на каждый этаж). КУ за отопление очень низкие по сравнению с городскими тарифами.
Мощность электричества с возможностью увеличения, ТП находится рядом.

По документам обременений нет.
Также рассмотрим продажу здания целиком https://tat-estate.ru/catalog/sale/commerce/object/9013?lang=ru

Звоните, готова организовать показ в удобное для Вас время.
С уважением Дина Загреева.
АН "Татэстейт".
Подробнее

Характеристики

  • Тип недвижимости Коммерческая
  • Населенный пункт Казань
  • Район Вахитовский
  • Адрес улица Островского, д.104
  • Вид объекта Помещение свободного назначения
  • Тип сделки Продажа
  • Общая площадь 251.32 м²
  • Этаж 2
  • Этажность дома 3
  • Отопление Центральное
  • Лифт нет
  • Вход С улицы
  • Планировка Кабинетная
  • Отделка Офисная
  • Тип здания Другой
  • Тип парковки На улице
  • Право собственности Собственник
  • Удаленность от дороги Первая линия
  • Статус земли Участок промышленности, транспорта, связи и иного не сельхоз. назначения
  • Высота потолка в метрах 3
Задать вопрос


Вас также может заинтересовать:
Помещение свободного назначения
Казань, улица Овражная, д.52
Вахитовский
65 790 000
  • Вид объекта:Помещение свободного назначения
  • Общая площадь:387 м²
  • Этаж:1
  • Этажность дома:4
11
Общепит-кафе
Отдельный вход
Площадь свободного назначения (ПСН) 555,9 кв.м.
Казань, улица Пушкина, д.18
Вахитовский
67 000 000
  • Вид объекта:Помещение свободного назначения
  • Общая площадь:555.9 м²
  • Этаж:-1
  • Этажность дома:4
20
Торговое помещение на 1 линии выход из метро Суконная слобода ТОП локация
Казань, улица Нурсултана Назарбаева, д.10
Вахитовский
75 500 000
  • Вид объекта:Помещение свободного назначения
  • Общая площадь:215 м²
  • Этаж:1
  • Этажность дома:6

Мы используем файлы cookie, чтобы обеспечить вам наилучший доступ к нашему веб-сайту

Скопировано