Казань, ул. Тукая 77
Пн-пт с 08:00 до 21:00

Продажа ГАБ (можно долю) ID: J10516

Казань, улица Сафиуллина, д.26А
Площадь 93 м²
Этаж 1 из 10
Материал Жилой дом
QR
Ссылка на объект

Описание

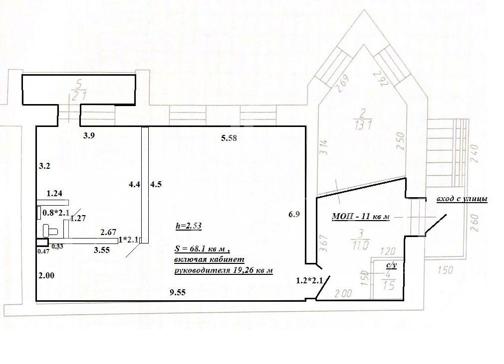
Продам помещение свободного назначения под офис, отдел продаж, свободного назначения, имеется кабинет руководителя со своим сан узлом, зона под кухню с мокрой точкой, кондиционер, зона для сотрудников на 8-10 рабочих мест! Площадь офиса 93.7 кв.м.
Рядом находится парикмахерская, доступ 24/7, есть место под вывеску, отдельный вход, первый этаж,
потолки 3 метра, парковка перед домом.
Коммунальные платежи оплачиваются отдельно по счётчикам: зима 7000 руб, лето 4500 руб.
доходность по запросу !
Светлый нейтральный ремонт, можно сделать 3 кабинета ( на данный момент сделан кабинет руководителя со своим сан узлом, кухня для персонала), кондиционер.

Звоните, организуем показ, ответим на интересующие вопросы!

Характеристики

  • Тип недвижимости Коммерческая
  • Населенный пункт Казань
  • Адрес улица Сафиуллина, д.26А
  • Вид объекта Офисное помещение
  • Обязательно для заполнения: доп. 2 категории Свободного назначения, Торговое помещение
  • Тип сделки Продажа
  • Общая площадь 93 м²
  • Этаж 1
  • Этажность дома 10
  • Лифт нет
  • Вход Со двора
  • Планировка Кабинетная
  • Отделка Чистовая
  • Тип здания Жилой дом
  • Тип парковки На улице
  • Право собственности Посредник
  • Статус земли Поселений
  • Высота потолка в метрах 3
Задать вопрос


Вас также может заинтересовать:
9
Помещение свободного назначения 122м на 6-ом этаже
Казань, улица Фатыха Амирхана, д.40а
Ново-Савиновский
18 300 000
  • Вид объекта:Помещение свободного назначения
  • Общая площадь:122 м²
  • Этаж:6
  • Этажность дома:7
3
Продажа торгового помещения 90,37м2
Казань, Республика Татарстан, Лаишевский р-н, Столбищенское сельское поселение, жилой комплекс Новый Свет, УБ-8

18 000 000
  • Вид объекта:Торговое помещение
  • Общая площадь:90 м²
  • Этаж:1
  • Этажность дома:4
22
Отдельный вход
24/7 доступ
Офисное помещение 89 м²
Казань, улица Даурская, д.44В
Советский
21 500 000
  • Вид объекта:Офисное помещение
  • Общая площадь:89 м²
  • Этаж:1
  • Этажность дома:10

Мы используем файлы cookie, чтобы обеспечить вам наилучший доступ к нашему веб-сайту

Скопировано