Казань, ул. Тукая 77
Пн-пт с 08:00 до 21:00

Здание 1308,37 кв.м. ID: J8745

Казань, Вахитовский, улица Достоевского, д.69Б
Площадь 1308 м²
Этаж 1 из 4
Материал Другой
2 616 000 / месяц
2 000 /м²
QR
Ссылка на объект

Описание

Предложение от собственника!

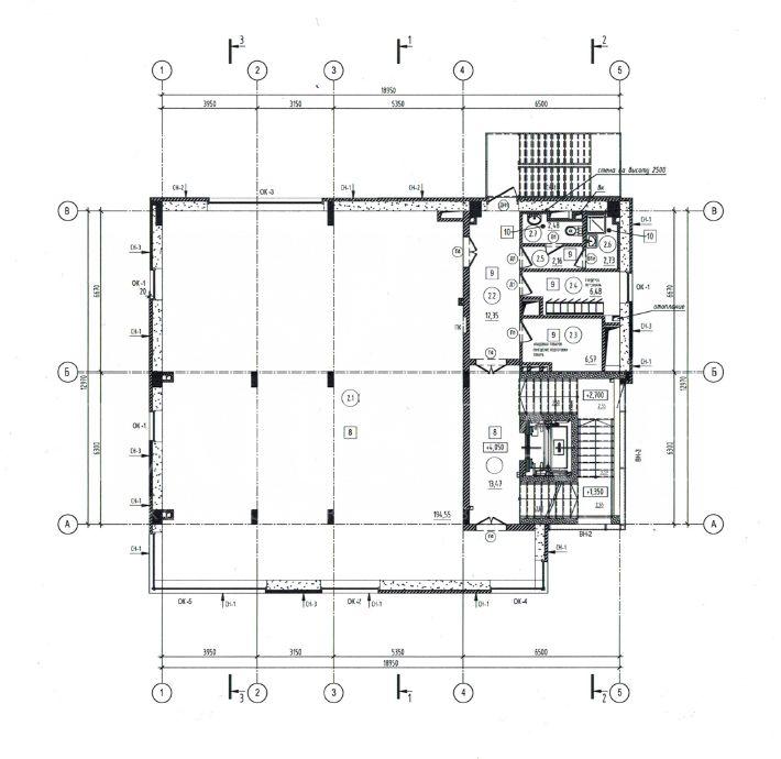
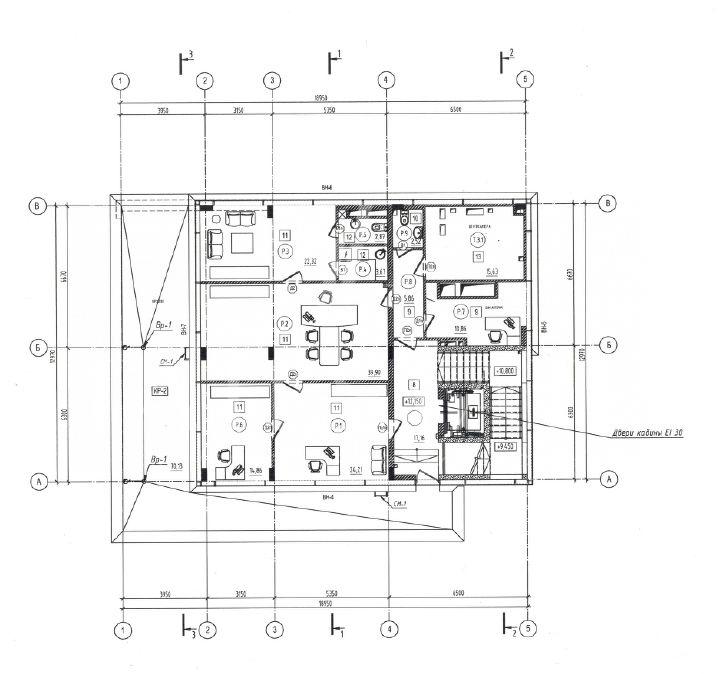
Предлагаем отдельно стоящее здание в центре города 1308,37 кв.м., можно арендовать поэтажно.

паркинг 355.26 кв.м.
1й этаж 206,4 кв.м.
2й этаж 276,93 кв.м.
3й этаж 276,93 кв.м.
4й этаж 192,85 кв.м.

- 1-я линия
- доступ 24/7
- большое количество квт
- центральные коммуникации
- панорамные окна
- подземный паркинг на 8 машин
- несколько сан.узлов
- приточно-вытяжная вентиляция

Подойдет под разный вид деятельности, под медицинский центр, под кафе/рестораны, под офис крупной компании.

Характеристики

  • Тип недвижимости Коммерческая
  • Населенный пункт Казань
  • Район Вахитовский
  • Адрес улица Достоевского, д.69Б
  • Стоимость заМесяц
  • Вид объекта Помещение свободного назначения
  • Тип аренды (прямая/субаренда) Прямая
  • Общая площадь 1308 м²
  • Этаж 1
  • Этажность дома 4
  • Отопление Автономное
  • Лифт нет
  • Вход С улицы
  • Планировка Открытая
  • Отделка Без отделки
  • Тип здания Другой
  • Тип парковки На улице
  • Право собственности Собственник
  • Удаленность от дороги Первая линия
  • Статус земли Поселений
  • Высота потолка в метрах 3
Задать вопрос


Вас также может заинтересовать:
9
Склад ответственного хранения, низкотемпературный
Казань, Зеленодольский район, Зеленодольск, территория Технополис Новая Тура, 3

2 000 000 / месяц
  • Вид объекта:Складское помещение
  • Тип аренды (прямая/субаренда):Прямая
  • Общая площадь:2000 м²
  • Этаж:1
31
Гостинница/отель
24/7 доступ
Уникальное предложение на первой линии 840 кв на 3 и 4 этаже + 50 кв клиентская зона на 1 этаже
Казань, улица Нурсултана Назарбаева, д.16
Вахитовский
2 100 000 / месяц
  • Вид объекта:Помещение свободного назначения
  • Тип аренды (прямая/субаренда):Прямая
  • Общая площадь:840 м²
  • Этаж:4
33
Много кВт-производство
Пандус-рампа
Помещение свободного назначения ул. Парина 2 000 м²
Казань, улица Академика Парина, д.1
Приволжский, Горки-1
2 000 000 / месяц
  • Вид объекта:Помещение свободного назначения
  • Тип аренды (прямая/субаренда):Прямая
  • Общая площадь:2000 м²
  • Этаж:-1

Мы используем файлы cookie, чтобы обеспечить вам наилучший доступ к нашему веб-сайту

Скопировано