Казань, ул. Тукая 77
Пн-пт с 08:00 до 21:00

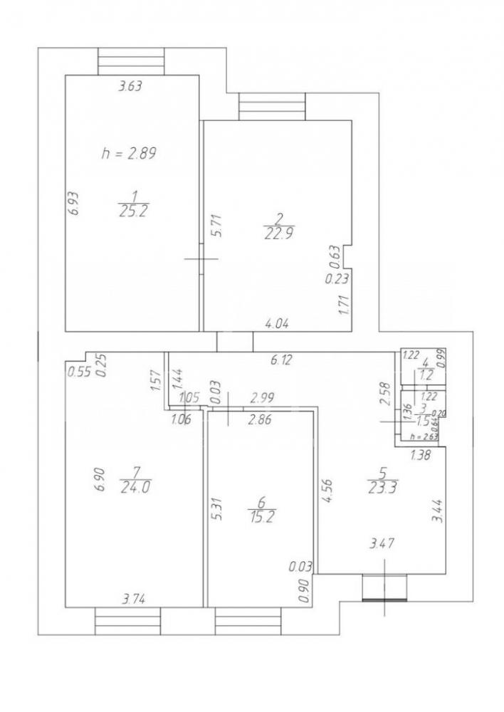
Аренда офиса в изумрудном городе 116 метров ID: J6074

Казань, Приволжский, улица Салиха Батыева, д.9
Площадь 117 м²
Этаж 1 из 9
Материал Жилой дом

Описание

Сдаю офисное помещение в жк Изумрудный город по адресу Салиха Батыева 9. Отдельный вход. первый этаж, кабинетная планировка.
Офисный ремонт, в каждом кабинете окна. Высота потолков 2,89м. Состоит из 4 кабинетов и коридор, свой санузел.
Густозаселенный жк, парковка напротив входа.
Ку оплачиваются отдельно.
Остались вопросы? Звоните, оперативно организуем показ.

Характеристики

  • Тип недвижимости Коммерческая
  • Населенный пункт Казань
  • Район Приволжский
  • Адрес улица Салиха Батыева, д.9
  • Стоимость заМесяц
  • Вид объекта Помещение свободного назначения
  • Обязательно для заполнения: доп. 2 категории Офис, Торговое помещение
  • Тип аренды (прямая/субаренда) Прямая
  • Общая площадь 117 м²
  • Этаж 1
  • Этажность дома 9
  • Отопление Центральное
  • Водоснабжение да
  • Лифт нет
  • Вход С улицы
  • Планировка Кабинетная
  • Отделка Чистовая
  • Тип здания Жилой дом
  • Тип парковки На улице
  • Право собственности Посредник
  • Удаленность от дороги Первая линия
  • Статус земли Поселений
  • Высота потолка в метрах 3

Вас также может заинтересовать:
4
Отдельный вход
24/7 доступ
Холодный склад 200 кв.м.
Казань, улица Мамадышский Тракт, д.127
Советский
100 000 / месяц
  • Вид объекта:Складское помещение
  • Тип аренды (прямая/субаренда):Прямая
  • Общая площадь:200 м²
  • Этаж:1
6
Сдам холодный склад, 450 м
Казань, улица Химическая, д.21

90 000 / месяц
  • Вид объекта:Складское помещение
  • Тип аренды (прямая/субаренда):Прямая
  • Общая площадь:450 м²
  • Этаж:1
18
Отдельный вход
Пандус-рампа
Помещение свободного назначения 100 м²
Казань, улица Рауиса Гареева, д.102, к.1
Приволжский
120 000 / месяц
  • Вид объекта:Помещение свободного назначения
  • Тип аренды (прямая/субаренда):Прямая
  • Общая площадь:100 м²
  • Этаж:1

Мы используем файлы cookie, чтобы обеспечить вам наилучший доступ к нашему веб-сайту

Скопировано