Казань, ул. Тукая 77
Пн-пт с 08:00 до 21:00

Здание 937 кв с парковкой и ремонтом ID: J1707

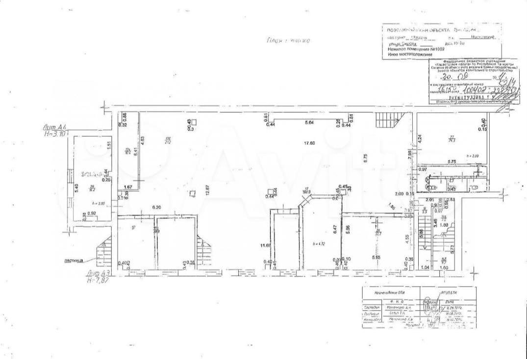
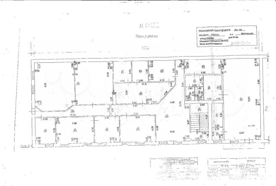
Казань, Московский, улица Серова, д.9А
Площадь 937 м²
Этаж 1 из 2
Материал Другой
890 150 / месяц
950 /м²
QR
Ссылка на объект

Описание

Сдается отдельно стоящее 2х этажное офисное здание с возможностью размещения мелкосерийного производства, медицинского центра, площадью 937,1м.кв. Введеное в эксплуатацию в 2007 году с возможностью размещения до ста сотрудников. Бесплатная парковка на 25 машин. Здание находится в многоэтажной застройке с развитой инфраструктурой и удобной транспортной схемой. На здании возможно размещение вывески. В здании евроремонт, телефон, интернет, кондиционирование, вентиляция, охрана. Санузлы, столовая. По отоплению и электроснабжению есть возможность заключить прямые договора.

Характеристики

  • Тип недвижимости Коммерческая
  • Населенный пункт Казань
  • Район Московский
  • Адрес улица Серова, д.9А
  • Стоимость заМесяц
  • Вид объекта Помещение свободного назначения
  • Обязательно для заполнения: доп. 2 категории Офис, Свободного назначения, Торговое помещение
  • Тип аренды (прямая/субаренда) Прямая
  • Общая площадь 937 м²
  • Этаж 1
  • Этажность дома 2
  • Отопление Центральное
  • Водоснабжение да
  • Лифт нет
  • Вход С улицы
  • Планировка Кабинетная
  • Отделка Чистовая
  • Тип здания Другой
  • Тип парковки На улице
  • Право собственности Собственник
  • Удаленность от дороги Вторая линия и дальше
  • Статус земли Поселений
  • Высота потолка в метрах 3
Задать вопрос


Вас также может заинтересовать:
10
Сдается ОСЗ 380 кв в центре
Казань

945 000 / месяц
  • Вид объекта:Помещение свободного назначения
  • Тип аренды (прямая/субаренда):Прямая
  • Общая площадь:378 м²
  • Этаж:2
20
Сдается 400 кв.м с Ремонтом в торгово-офисном здании класса А
Казань, улица Гаврилова, д.3
Ново-Савиновский
840 000 / месяц
  • Вид объекта:Помещение свободного назначения
  • Тип аренды (прямая/субаренда):Прямая
  • Общая площадь:400 м²
  • Этаж:3
25
Производственно-складское помещение 1400 кв.м.
Казань, Республика Татарстан (Татарстан), Зеленодольский район, Осиновское сельское поселение, территория Промышленная Площадка Индустриальный Парк М7

980 000 / месяц
  • Вид объекта:Производственное помещение
  • Тип аренды (прямая/субаренда):Прямая
  • Общая площадь:1400 м²
  • Этаж:1

Мы используем файлы cookie, чтобы обеспечить вам наилучший доступ к нашему веб-сайту

Скопировано