Казань, ул. Тукая 77
Пн-пт с 08:00 до 21:00

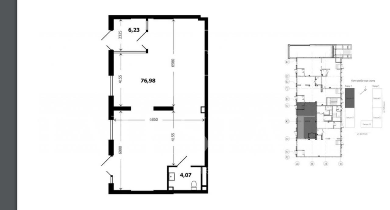
ПСН в новом ЖК в центре 87,3 кв.м. ID: J10754

Казань, Приволжский, улица Шаляпина, д.26
Площадь 87 м²
Этаж 1 из 8
Материал Жилой дом
260 913 / месяц
2 999 /м²
QR
Ссылка на объект

Описание

Сдам в аренду помещение свободного назначения 87,3 кв.м на 1-м этаже жилого дома по ул. Шаляпина, 26 в Приволжском районе города Казань.


В помещении есть все необходимые коммуникации (электричество, водоснабжение, отопление).


Большие окна. 2 Отдельный входа. Высота потолка 3 м. Свой санузел. Электричество 7 квт Парковка стихийная. перед домом, также есть общегородские 30р/ч.


До станции метро "Суконная слобода" 9 минут пешком. Договор заключаем на 11 месяцев.


Предоставляются арендные каникулы на время ремонта. Коммунальные услуги оплачиваются отдельно.


Помещение идеально подойдет для размещения офиса, магазина, салона красоты, аптеки, кафе, студии растяжки, йоги, фитнеса или другого бизнеса. Объект расположен в новом ЖК "Квартал Сюита" в удобной локации с хорошей транспортной доступностью и развитой инфраструктурой.

Характеристики

  • Тип недвижимости Коммерческая
  • Населенный пункт Казань
  • Район Приволжский
  • Адрес улица Шаляпина, д.26
  • Стоимость заМесяц
  • Вид объекта Помещение свободного назначения
  • Обязательно для заполнения: доп. 2 категории Офис, Свободного назначения, Торговое помещение, Склад, Производство, Общепит, Гостиница
  • Тип аренды (прямая/субаренда) Прямая
  • Общая площадь 87 м²
  • Этаж 1
  • Этажность дома 8
  • Отопление Центральное
  • Лифт нет
  • Вход С улицы
  • Планировка Открытая
  • Отделка Без отделки
  • Тип здания Жилой дом
  • Тип парковки На улице
  • Право собственности Собственник
  • Удаленность от дороги Первая линия
  • Статус земли Участок промышленности, транспорта, связи и иного не сельхоз. назначения
  • Высота потолка в метрах 3
Задать вопрос


Вас также может заинтересовать:
20
Площадь свободного назначения на 1й линии 196,5 кв.м.
Казань, улица Каюма Насыри, д.28
Вахитовский
200 000 / месяц
  • Вид объекта:Помещение свободного назначения
  • Тип аренды (прямая/субаренда):Прямая
  • Общая площадь:196 м²
  • Этаж:-1
30
Отдельный вход
24/7 доступ
Помещение 135 кв.м. на 1ом этаже
Казань, тер ГСК Вахитовец (Советский),
Советский
250 000 / месяц
  • Вид объекта:Помещение свободного назначения
  • Тип аренды (прямая/субаренда):Прямая
  • Общая площадь:135.5 м²
  • Этаж:1
27
Отдельный вход
24/7 доступ
Помещение свободного назначения 158,4 кв.м.
Казань, проспект Победы, д.230
Советский
200 000 / месяц
  • Вид объекта:Помещение свободного назначения
  • Тип аренды (прямая/субаренда):Прямая
  • Общая площадь:158 м²
  • Этаж:1

Мы используем файлы cookie, чтобы обеспечить вам наилучший доступ к нашему веб-сайту

Скопировано