Казань, ул. Тукая 77
Пн-пт с 08:00 до 21:00

1 линия в центре отд вход ID: J10661

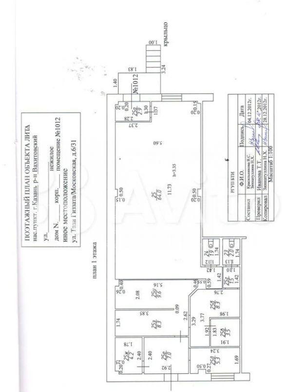
Казань, Вахитовский, улица Тази Гиззата, д.6/31
Площадь 121 м²
Этаж 1 из 4
Материал Бизнес-центр
180 000 / месяц
1 487 /м²
QR
Ссылка на объект

Описание

Предлагаем помещение в центре города на пересечении Тази Гиззата и Московской, ВЫСОКИЙ ТРАФФИК!

- доступ 24/7;
- 1я линия;
- 35 КВТ
- есть возможность разместить вывеску;
- центральные коммуникации;
- есть возможность установки кондиционеров и вытяжки;
- свой сан.узел;
- кухонная зона, мокрая точка;
- парковка стихийная во дворе, и также муниципальная;
- 2 выхода - один с первой линии, а второй со двора
- оплата коммунальных услуг оплачивается отдельно.

Имеется запасной выход на задний двор. Соответствует всем нормам. Парковка вдоль здания.
Рассмотрим офис, представительство, общепит, магазин, аптека, мед. учреждение

Характеристики

  • Тип недвижимости Коммерческая
  • Населенный пункт Казань
  • Район Вахитовский
  • Адрес улица Тази Гиззата, д.6/31
  • Стоимость заМесяц
  • Вид объекта Помещение свободного назначения
  • Обязательно для заполнения: доп. 2 категории Офис, Торговое помещение
  • Тип аренды (прямая/субаренда) Прямая
  • Общая площадь 121 м²
  • Этаж 1
  • Этажность дома 4
  • Отопление Центральное
  • Лифт нет
  • Вход С улицы
  • Планировка Открытая
  • Отделка Чистовая
  • Тип здания Бизнес-центр
  • Тип парковки На улице
  • Право собственности Собственник
  • Удаленность от дороги Первая линия
  • Статус земли Участок промышленности, транспорта, связи и иного не сельхоз. назначения
  • Высота потолка в метрах 3
Задать вопрос


Вас также может заинтересовать:
6
Первая линия
Отдельный вход
Помещение свободного назначения 150 кв.м.
Казань, улица Вишневского, д.12
Вахитовский
225 000 / месяц
  • Вид объекта:Помещение свободного назначения
  • Тип аренды (прямая/субаренда):Прямая
  • Общая площадь:150 м²
  • Этаж:1
14
Оборудование входит в стоимость
Казань, улица Фатыха Амирхана, д.18/41
Ново-Савиновский
165 000 / месяц
  • Вид объекта:Помещение свободного назначения
  • Тип аренды (прямая/субаренда):Прямая
  • Общая площадь:75 м²
  • Этаж:1
11
Общепит-кафе
Отдельный вход
Помещение на 1 линии 77 кв.м. с отд.входом
Казань, проспект Победы, д.152/33
Советский
154 000 / месяц
  • Вид объекта:Помещение свободного назначения
  • Тип аренды (прямая/субаренда):Прямая
  • Общая площадь:77 м²
  • Этаж:1

Мы используем файлы cookie, чтобы обеспечить вам наилучший доступ к нашему веб-сайту

Скопировано