Казань, ул. Тукая 77
Пн-пт с 08:00 до 21:00

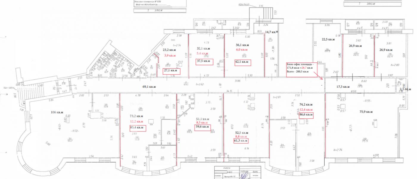
Видовые офисы в центре от 22,5 до 513 кв.м. ID: J10649

Казань, Вахитовский, улица Дзержинского, д.11а
Площадь 85 м²
Этаж 1 из 5
Материал Жилой дом
170 000 / месяц
2 000 /м²
Мирослав Федотов Мирослав Федотов
Специалист по коммерческой недвижимости
Показать телефон miroslav@tat-estate.ru
QR
Ссылка на объект

Описание

Предложение от собственника!

Предлагаем в аренду помещения свободного назначения в центре города от 22,5 до 513 кв.м.

Сдается без НДС!

- доступ 24/7;
- 1я линия;
- сан.узел узел на этаже;
- рядом есть муниципальная парковка;
- коммунальные платежи оплачиваются отдельно;
- высота потолков 3м.;
- есть кондиционеры;
- пожарная сигнализация;
- охрана;
- видеонаблюдение;
- окна на солнечную (южную) сторону с видом на парк и в уютный закрытый двор дома

В здании: кофейня Skurаtоv
* В шаговой доступности: Казанский Кремль, Кабмин РТ, метро, рестораны, апартаменты Оdеttе, площадь Свободы

Характеристики

  • Тип недвижимости Коммерческая
  • Населенный пункт Казань
  • Район Вахитовский
  • Адрес улица Дзержинского, д.11а
  • Стоимость заМесяц
  • Вид объекта Помещение свободного назначения
  • Обязательно для заполнения: доп. 2 категории Офис, Торговое помещение
  • Тип аренды (прямая/субаренда) Прямая
  • Общая площадь 85 м²
  • Этаж 1
  • Этажность дома 5
  • Отопление Центральное
  • Водоснабжение да
  • Лифт нет
  • Вход С улицы
  • Планировка Кабинетная, Открытая
  • Отделка Офисная
  • Тип здания Жилой дом
  • Тип парковки На улице
  • Право собственности Собственник
  • Удаленность от дороги Первая линия
  • Статус земли Поселений
  • Высота потолка в метрах 3
Задать вопрос


Вас также может заинтересовать:
14
Оборудование входит в стоимость
Казань, улица Фатыха Амирхана, д.18/41
Ново-Савиновский
165 000 / месяц
  • Вид объекта:Помещение свободного назначения
  • Тип аренды (прямая/субаренда):Прямая
  • Общая площадь:75 м²
  • Этаж:1
11
Общепит-кафе
Отдельный вход
Помещение на 1 линии 77 кв.м. с отд.входом
Казань, проспект Победы, д.152/33
Советский
154 000 / месяц
  • Вид объекта:Помещение свободного назначения
  • Тип аренды (прямая/субаренда):Прямая
  • Общая площадь:77 м²
  • Этаж:1
27
Отдельный вход
24/7 доступ
Помещение свободного назначения 158,4 кв.м.
Казань, проспект Победы, д.230
Советский
200 000 / месяц
  • Вид объекта:Помещение свободного назначения
  • Тип аренды (прямая/субаренда):Прямая
  • Общая площадь:158 м²
  • Этаж:1

Мы используем файлы cookie, чтобы обеспечить вам наилучший доступ к нашему веб-сайту

Скопировано