Казань, ул. Тукая 77
Пн-пт с 08:00 до 21:00

Бар, клуб, кальянная, ресторан: 626 кв.м. ID: J10645

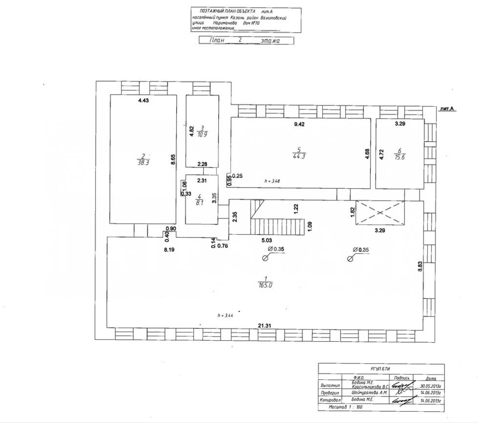
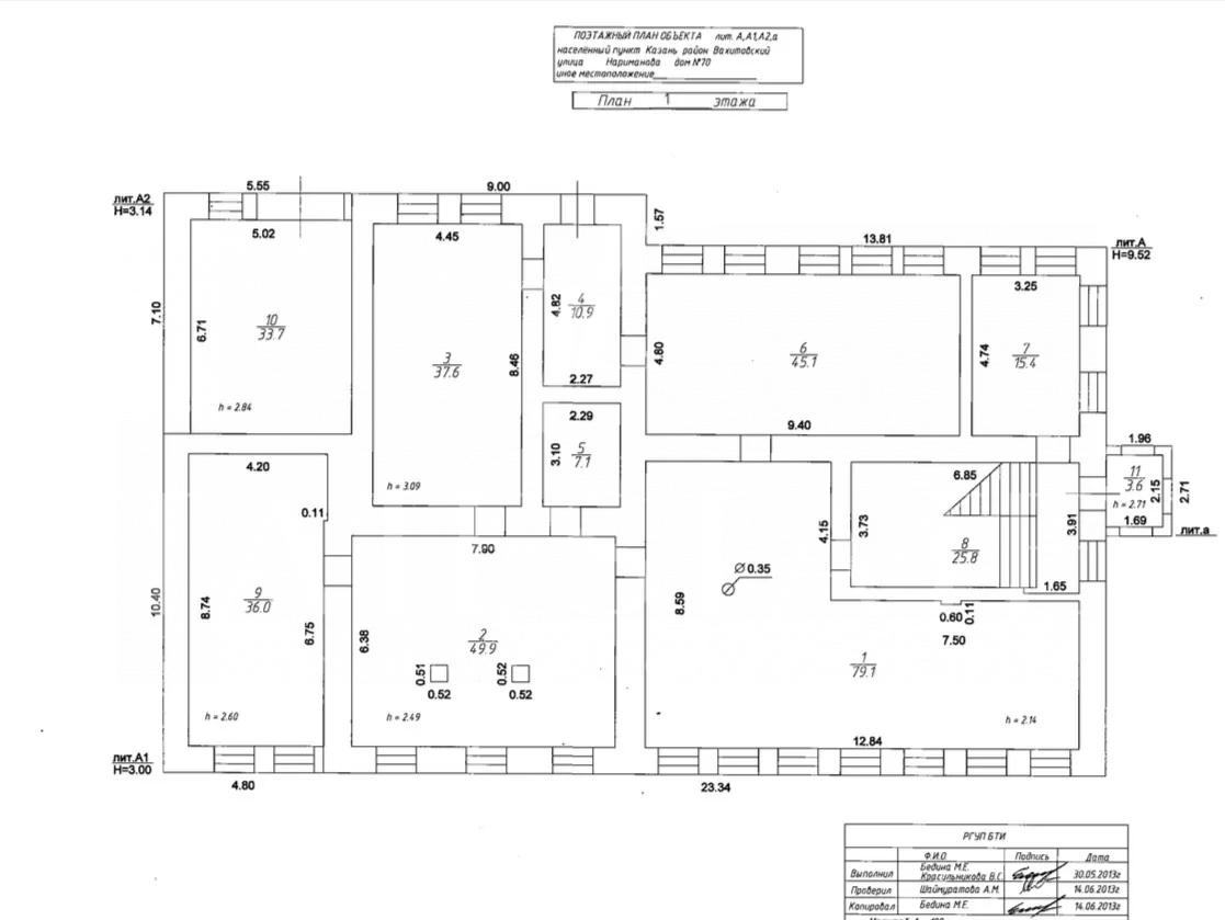
Казань, Вахитовский, улица Нариманова, д.70/1
Площадь 626.4 м²
Этаж 1 из 3
Материал Административное здание
939 000 / месяц
1 499 /м²
QR
Ссылка на объект

Описание

Сдаётся два этажа. По адресу Нариманова 70/1.


Все готово под общепит,кальянную , клуб, ресторанный бизнес, однако можно рассмотреть под торговлю или офис, например.


Большой внутренний двор и терасса. Летом удобно.


Расшифровка площади:


Первый этаж - 344.2 кв.м.


Второй этаж - 282.2 кв.м.


Помещения полностью готовы под ресторанный бизнес.


Вытяжка, холодильники, оборудованная кухня, зона разгрузки.

Характеристики

  • Тип недвижимости Коммерческая
  • Населенный пункт Казань
  • Район Вахитовский
  • Адрес улица Нариманова, д.70/1
  • Стоимость заМесяц
  • Вид объекта Помещение свободного назначения
  • Обязательно для заполнения: доп. 2 категории Офис, Торговое помещение
  • Тип аренды (прямая/субаренда) Прямая
  • Общая площадь 626.4 м²
  • Этаж 1
  • Этажность дома 3
  • Отопление Автономное
  • Водоснабжение да
  • Лифт нет
  • Вход С улицы
  • Планировка Открытая
  • Отделка Чистовая
  • Тип здания Административное здание
  • Тип парковки На улице
  • Право собственности Собственник
  • Удаленность от дороги Первая линия
  • Статус земли Поселений
  • Высота потолка в метрах 3
Задать вопрос


Вас также может заинтересовать:
9
Помещение свободного назначения 564.5 м²
Казань, улица Танковая, д.2
Приволжский
846 000 / месяц
  • Вид объекта:Помещение свободного назначения
  • Тип аренды (прямая/субаренда):Прямая
  • Общая площадь:564.5 м²
  • Этаж:1
15
Площадь свободного назначения 500 кв.м.
Казань, улица Нариманова, д.39
Вахитовский
950 000 / месяц
  • Вид объекта:Помещение свободного назначения
  • Тип аренды (прямая/субаренда):Прямая
  • Общая площадь:500 м²
  • Этаж:1
17
Готовый склад-производство с к/балкой 5тонн, мощность 150кВт.
Казань, улица Теплично-комбинатская, д.15
Авиастроительный
1 152 000 / месяц
  • Вид объекта:Производственное помещение
  • Тип аренды (прямая/субаренда):Прямая
  • Общая площадь:1440 м²
  • Этаж:1

Мы используем файлы cookie, чтобы обеспечить вам наилучший доступ к нашему веб-сайту

Скопировано