Казань, ул. Тукая 77
Пн-пт с 08:00 до 21:00

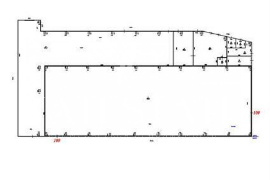
Сдам производственный цех, склад 1270 кв.м. с января 2026 г. ID: J10640

Казань, Московский, улица Рахимова, д.8
Площадь 1270 м²
Этаж 1 из 1
Материал Административное здание
900 000 / месяц
708 /м²
QR
Ссылка на объект

Описание

Склад сдается с января 2026 года, площадь 1270 м² по адресу: г. Казань, Московский район, ул. Рахимова, д. 8.

Основная информация
1. Общая площадь — 1270 м²:
— Отапливаемая часть: 953 м²
— Холодный тамбур: 317 м²
3. Высота потолков: 9 м.
Функциональные возможности:
· Два заезда с удобными подъездными путями
· Распашные ворота на нулевом уровне с заездом
· Распашные ворота с грузоподъемной платформой (1000 кг)
· Электрическая мощность: 30 кВт (до 150 квт)
· Современные антипылевые промышленные полы
· Центральные коммуникации: отопление, водоснабжение и канализация
Дополнительные помещения:
— Двухэтажный офис, расположенный в холодном тамбуре
— Два санузла

Характеристики

  • Тип недвижимости Коммерческая
  • Населенный пункт Казань
  • Район Московский
  • Адрес улица Рахимова, д.8
  • Стоимость заМесяц
  • Вид объекта Складское помещение
  • Обязательно для заполнения: доп. 2 категории Торговое помещение, Производство
  • Тип аренды (прямая/субаренда) Прямая
  • Общая площадь 1270 м²
  • Этаж 1
  • Этажность дома 1
  • Отопление Центральное
  • Лифт нет
  • Вход С улицы
  • Планировка Открытая
  • Отделка Чистовая
  • Тип здания Административное здание
  • Тип парковки На улице
  • Право собственности Посредник
  • Статус земли Участок промышленности, транспорта, связи и иного не сельхоз. назначения
  • Высота потолка в метрах 8
Задать вопрос


Вас также может заинтересовать:
5
ПСН 434 кв в центре со своей парковкой
Казань, улица Чернышевского, д.29а
Вахитовский
781 200 / месяц
  • Вид объекта:Помещение свободного назначения
  • Тип аренды (прямая/субаренда):Прямая
  • Общая площадь:434 м²
  • Этаж:2
20
Сдается 400 кв.м с Ремонтом в торгово-офисном здании класса А
Казань, улица Гаврилова, д.3
Ново-Савиновский
840 000 / месяц
  • Вид объекта:Помещение свободного назначения
  • Тип аренды (прямая/субаренда):Прямая
  • Общая площадь:400 м²
  • Этаж:3
18
Первая линия
Много кВт-производство
Теплый склад на пандусе с высотой 10м на Технической
Казань, улица Тульская, д.57г
Приволжский
1 050 000 / месяц
  • Вид объекта:Складское помещение
  • Тип аренды (прямая/субаренда):Прямая
  • Общая площадь:1050 м²
  • Этаж:1

Мы используем файлы cookie, чтобы обеспечить вам наилучший доступ к нашему веб-сайту

Скопировано