Казань, ул. Тукая 77
Пн-пт с 08:00 до 21:00

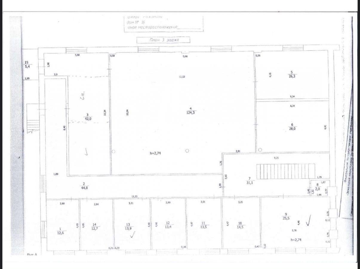
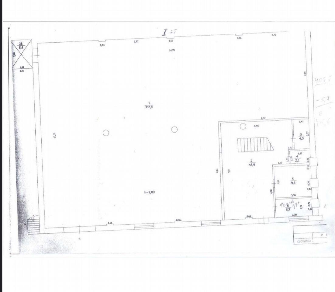
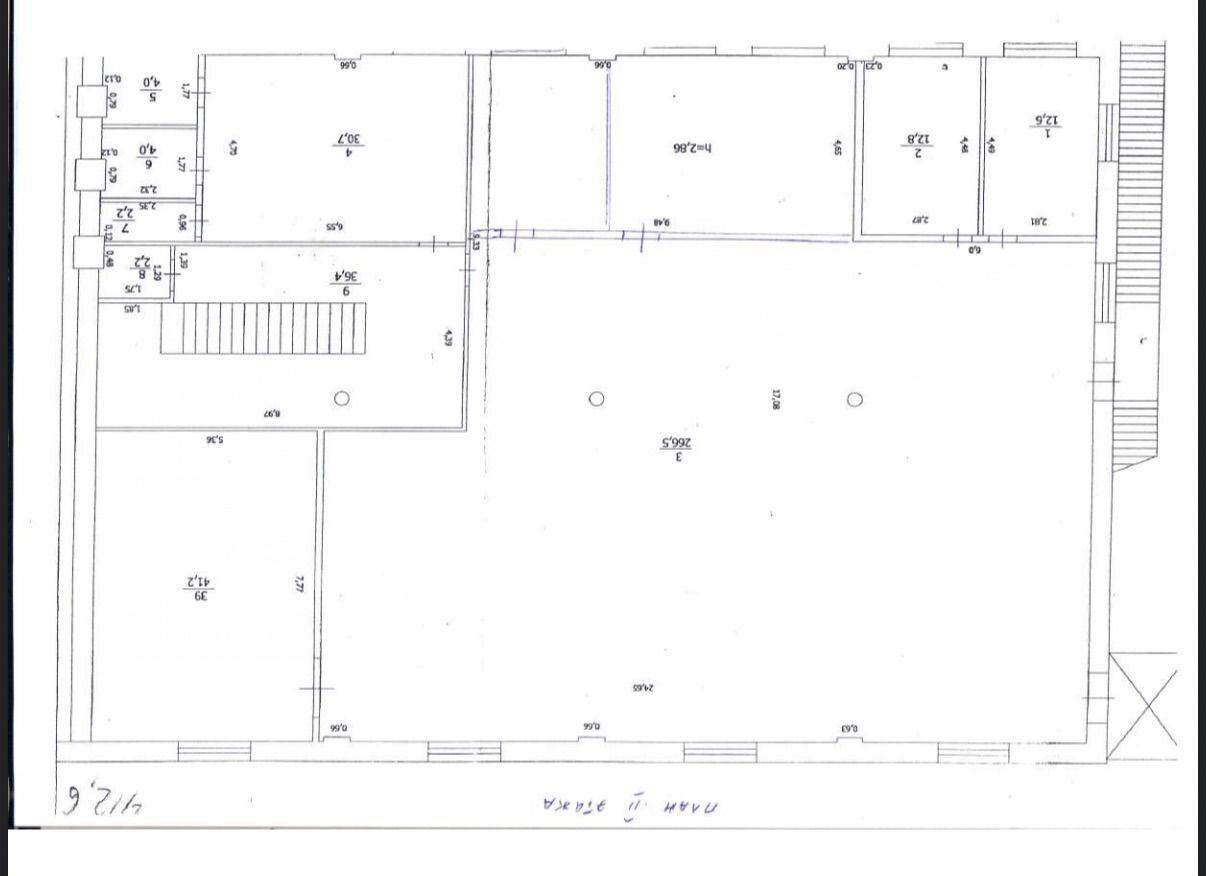
Производственное помещение 1200 кв.м ID: J10568

Казань, Московский, улица Рахимова, д.16
Площадь 1200 м²
Этаж 1 из 3
Материал Административное здание
720 000 / месяц
600 /м²
QR
Ссылка на объект

Описание

Отапливаемое производственное помещение 1200 кв.м
Здание 3х этажное, грузовой лифт
Планировка смешанная : Кабинетная и Опен-спейс, в помещении много окон и много
света.
Сейчас расположено пищевое производство.
Много места для парковки.
Отличные электрические мощности.
Так же есть офисные помещения для бухгалтерии и дирекции.
КУ, электроэнергия оплачивается отдельно.
Стоимость аренды без НДС.

Характеристики

  • Тип недвижимости Коммерческая
  • Населенный пункт Казань
  • Район Московский
  • Адрес улица Рахимова, д.16
  • Стоимость заМесяц
  • Вид объекта Производственное помещение
  • Обязательно для заполнения: доп. 2 категории Свободного назначения, Общепит
  • Тип аренды (прямая/субаренда) Прямая
  • Общая площадь 1200 м²
  • Этаж 1
  • Этажность дома 3
  • Отопление Центральное
  • Водоснабжение да
  • Лифт нет
  • Вход С улицы
  • Планировка Кабинетная
  • Отделка Чистовая
  • Тип здания Административное здание
  • Тип парковки На улице
  • Право собственности Собственник
  • Статус земли Участок промышленности, транспорта, связи и иного не сельхоз. назначения
  • Высота потолка в метрах 2.8
Задать вопрос


Вас также может заинтересовать:
20
Сдается 400 кв.м с Ремонтом в торгово-офисном здании класса А
Казань, улица Гаврилова, д.3
Ново-Савиновский
840 000 / месяц
  • Вид объекта:Помещение свободного назначения
  • Тип аренды (прямая/субаренда):Прямая
  • Общая площадь:400 м²
  • Этаж:3
9
Помещение свободного назначения 564.5 м²
Казань, улица Танковая, д.2
Приволжский
846 000 / месяц
  • Вид объекта:Помещение свободного назначения
  • Тип аренды (прямая/субаренда):Прямая
  • Общая площадь:564.5 м²
  • Этаж:1
18
Общепит-кафе
Отдельный вход
Помещение под офис /торговое 448 кв.м. 1 ый Этаж
Казань, улица Патриса Лумумбы, д.61
Советский
611 520 / месяц
  • Вид объекта:Офисное помещение
  • Тип аренды (прямая/субаренда):Прямая
  • Общая площадь:448 м²
  • Этаж:1

Мы используем файлы cookie, чтобы обеспечить вам наилучший доступ к нашему веб-сайту

Скопировано