Казань, ул. Тукая 77
Пн-пт с 08:00 до 21:00

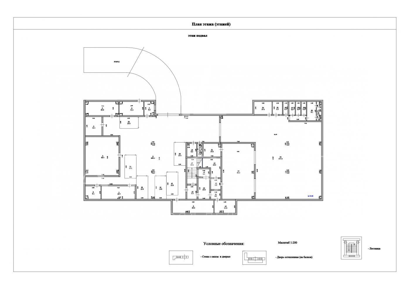
сдается помещение 775,5кв. под автотематику, детейлинг, склад, автосалон ID: J10549

Казань, Приволжский, улица Березовая (Лесной городок), д.27
Площадь 775 м²
Этаж -1 из 5
Материал Жилой дом
800 000 / месяц
1 032 /м²
Элина Родина Элина Родина
Специалист по недвижимости
Показать телефон elinori@list.ru
QR
Ссылка на объект

Описание

Общая площадь объекта 775,5 кв.м. ( 6 постов)
Адрес Республика Татарстан, г Казань, жилой комплекс "Лесной городок", улица Березовая, д 27, подвальный этаж торгово-административного здания, Приволжский района г. Казани, в районе РКБ, в 10 минутах от центра города.

Помещение свободного назначения прекрасно подойдет под автотематику, авто-шумоизоляцию, детейлинг, автосалон, склад и т.д.
На данный момент используется под автомойку.

Удобные условия для работы: парковка, зона ожидания, комфортные условия для сотрудников (комната отдыха, раздевалка, санузел, душевая).
ЖК Лесной городок находится по управлением управляющей – ООО «УК «Прогресс ЖКХ».

Прямой договор с МУП Водоканал на водоснабжение и водоотведение в объеме 0.420 м3/час., 5.000 м3/сут., 152.500 м3/мес., 1'830.000 м3/год

Прямой договор с ООО «УК «ПЖКХ» вывоз ТКО

Прямой договор с ООО «Теплоснабсервис» на горячее водоснабжение и отопление

Прямой договор с АО «Татэнергосбыт» на электроэнергию, максимальная мощность энергопринимающих устройств 50 кВт
Подробнее

Характеристики

  • Тип недвижимости Коммерческая
  • Населенный пункт Казань
  • Район Приволжский
  • Адрес улица Березовая (Лесной городок), д.27
  • Стоимость заМесяц
  • Вид объекта Помещение свободного назначения
  • Обязательно для заполнения: доп. 2 категории Торговое помещение, Склад, Производство
  • Тип аренды (прямая/субаренда) Прямая
  • Общая площадь 775 м²
  • Этаж -1
  • Этажность дома 5
  • Отопление Центральное
  • Водоснабжение да
  • Лифт нет
  • Вход С улицы
  • Планировка Кабинетная, Открытая
  • Отделка Чистовая
  • Тип здания Жилой дом
  • Тип парковки В здании
  • Право собственности Собственник
  • Удаленность от дороги Первая линия
  • Статус земли Поселений
  • Высота потолка в метрах 3
Задать вопрос


Вас также может заинтересовать:
10
Сдается ОСЗ 380 кв в центре
Казань

945 000 / месяц
  • Вид объекта:Помещение свободного назначения
  • Тип аренды (прямая/субаренда):Прямая
  • Общая площадь:378 м²
  • Этаж:2
20
Сдается 400 кв.м с Ремонтом в торгово-офисном здании класса А
Казань, улица Гаврилова, д.3
Ново-Савиновский
840 000 / месяц
  • Вид объекта:Помещение свободного назначения
  • Тип аренды (прямая/субаренда):Прямая
  • Общая площадь:400 м²
  • Этаж:3
25
Производственно-складское помещение 1400 кв.м.
Казань, Республика Татарстан (Татарстан), Зеленодольский район, Осиновское сельское поселение, территория Промышленная Площадка Индустриальный Парк М7

980 000 / месяц
  • Вид объекта:Производственное помещение
  • Тип аренды (прямая/субаренда):Прямая
  • Общая площадь:1400 м²
  • Этаж:1

Мы используем файлы cookie, чтобы обеспечить вам наилучший доступ к нашему веб-сайту

Скопировано