Казань, ул. Тукая 77
Пн-пт с 08:00 до 21:00

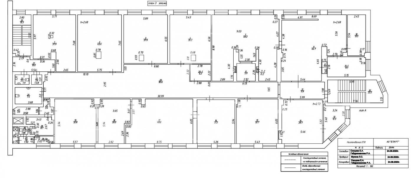
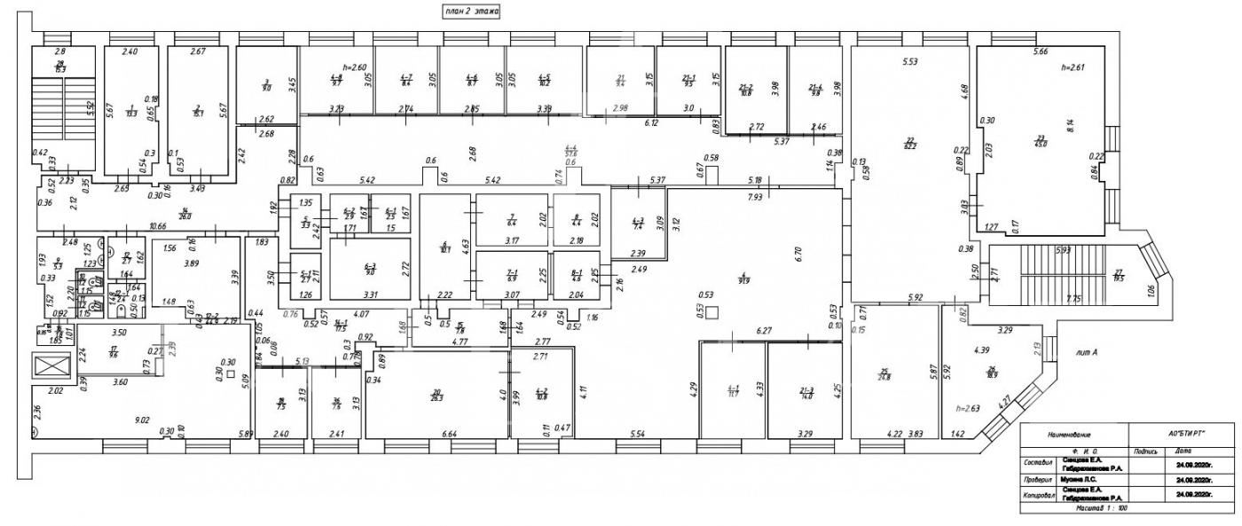
Офисное помещение от 700 до 4000 кв.м. ID: J10506

Казань, Ново-Савиновский, улица Маршала Чуйкова, д.2В
Площадь 3500 м²
Этаж 2 из 6
Материал Бизнес-центр
5 000 000 / месяц
1 428 /м²
Мирослав Федотов Мирослав Федотов
Специалист по коммерческой недвижимости
Показать телефон miroslav@tat-estate.ru
QR
Ссылка на объект

Описание

Предложение от собственника!

Сдаются офисы Бизнес Центре от 700 до 4000 кв.м.!

- доступ 24/7;
- 1 линия;
- система СКУД;
- центральное отопление;
- коммунальные услуги оплачиваются отдельно;
- установлены кондиционеры, приточно-вытяжная вентиляция;
- 27 кабинетов на этаже;
- свой сан.узел;
- закреплено до 6 парковочных мест на этаж;
- видеонаблюдение;
- сдается с НДС, также можно рассмотреть вариант без НДС.

Характеристики

  • Тип недвижимости Коммерческая
  • Населенный пункт Казань
  • Район Ново-Савиновский
  • Адрес улица Маршала Чуйкова, д.2В
  • Стоимость заМесяц
  • Вид объекта Офисное помещение
  • Обязательно для заполнения: доп. 2 категории Офис, Свободного назначения
  • Тип аренды (прямая/субаренда) Прямая
  • Общая площадь 3500 м²
  • Этаж 2
  • Этажность дома 6
  • Лифт нет
  • Вход С улицы
  • Планировка Кабинетная
  • Отделка Офисная
  • Тип здания Бизнес-центр
  • Тип парковки На улице
  • Право собственности Собственник
  • Статус земли Поселений
  • Высота потолка в метрах 3
Задать вопрос


Вас также может заинтересовать:
5
2 низкотемпературных склада по 1512 кв.м. до -24 градуса
Казань, улица Горьковское Шоссе, д.47
Кировский
4 500 000 / месяц
  • Вид объекта:Складское помещение
  • Тип аренды (прямая/субаренда):Прямая
  • Общая площадь:1500 м²
  • Этаж:1
33
Отдельно стоящее здание 1741,4 кв.м.
Казань, улица Право-Булачная, д.45/2
Вахитовский
4 000 000 / месяц
  • Вид объекта:Помещение свободного назначения
  • Тип аренды (прямая/субаренда):Прямая
  • Общая площадь:1741 м²
  • Этаж:1
8
Первая линия
НДС
Сдаётся современный логистический склад 5000 кв.м.
Казань, улица 1-я Владимирская, д.111
Советский
5 000 000 / месяц
  • Вид объекта:Складское помещение
  • Тип аренды (прямая/субаренда):Прямая
  • Общая площадь:5000 м²
  • Этаж:1

Мы используем файлы cookie, чтобы обеспечить вам наилучший доступ к нашему веб-сайту

Скопировано