Казань, ул. Тукая 77
Пн-пт с 08:00 до 21:00

Холодный склад 1023 ID: J10471

Зеленодольск, улица Кооперативная, д.1, к.1
Площадь 1023 м²
Этаж 1 из 1
Материал Другой
255 750 / месяц
250 /м²
QR
Ссылка на объект

Описание

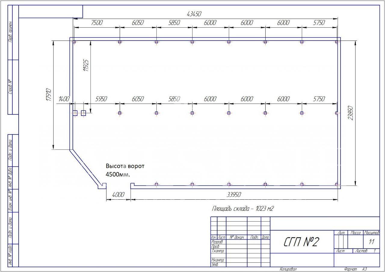
Холодный склад 1023м
Размеры склада 43.5 х 23.9м
Двускатная крыша высота в верхней точке 7.3м в нижней точке 3.6м
Охраняемая территория

Характеристики

  • Тип недвижимости Коммерческая
  • Населенный пункт Зеленодольск
  • Адрес улица Кооперативная, д.1, к.1
  • Стоимость заМесяц
  • Вид объекта Складское помещение
  • Тип аренды (прямая/субаренда) Прямая
  • Общая площадь 1023 м²
  • Этаж 1
  • Этажность дома 1
  • Отопление Нет
  • Лифт нет
  • Вход С улицы
  • Планировка Открытая
  • Отделка Чистовая
  • Тип здания Другой
  • Тип парковки На улице
  • Право собственности Посредник
  • Статус земли Участок промышленности, транспорта, связи и иного не сельхоз. назначения
  • Высота потолка в метрах 6
Задать вопрос


Вас также может заинтересовать:
8
Помещение свободного назначения 298.9 м²
Зеленодольск, улица Ленина, д.70

283 100 / месяц
  • Вид объекта:Помещение свободного назначения
  • Тип аренды (прямая/субаренда):Прямая
  • Общая площадь:298.9 м²
  • Этаж:1
16
Сдается в аренду особняк в Ореховке 1055,9 м2
Зеленодольск, Зеленодольский район, посёлок Дубровка, КП Западная Ореховка, Приозёрная улица, 1

250 000 / месяц
  • Вид объекта:Помещение свободного назначения
  • Тип аренды (прямая/субаренда):Прямая
  • Общая площадь:1055.9 м²
  • Этаж:1
7
Холодный склад 864м
Зеленодольск, улица Кооперативная, д.4

216 000 / месяц
  • Вид объекта:Складское помещение
  • Тип аренды (прямая/субаренда):Прямая
  • Общая площадь:864 м²
  • Этаж:1

Мы используем файлы cookie, чтобы обеспечить вам наилучший доступ к нашему веб-сайту

Скопировано