Казань, ул. Тукая 77
Пн-пт с 08:00 до 21:00

Панорамное остекление 1 ый этаж 1я линия ID: J10439

Казань, Советский, улица Гвардейская, д.54е
Площадь 429.3 м²
Этаж 1 из 5
Материал Бизнес-центр
858 000 / месяц
1 998 /м²
QR
Ссылка на объект

Описание

Коммерческое помещение свободного назначения.

г. Казань, Советский район
(удобная транспортная доступность, первая линия)

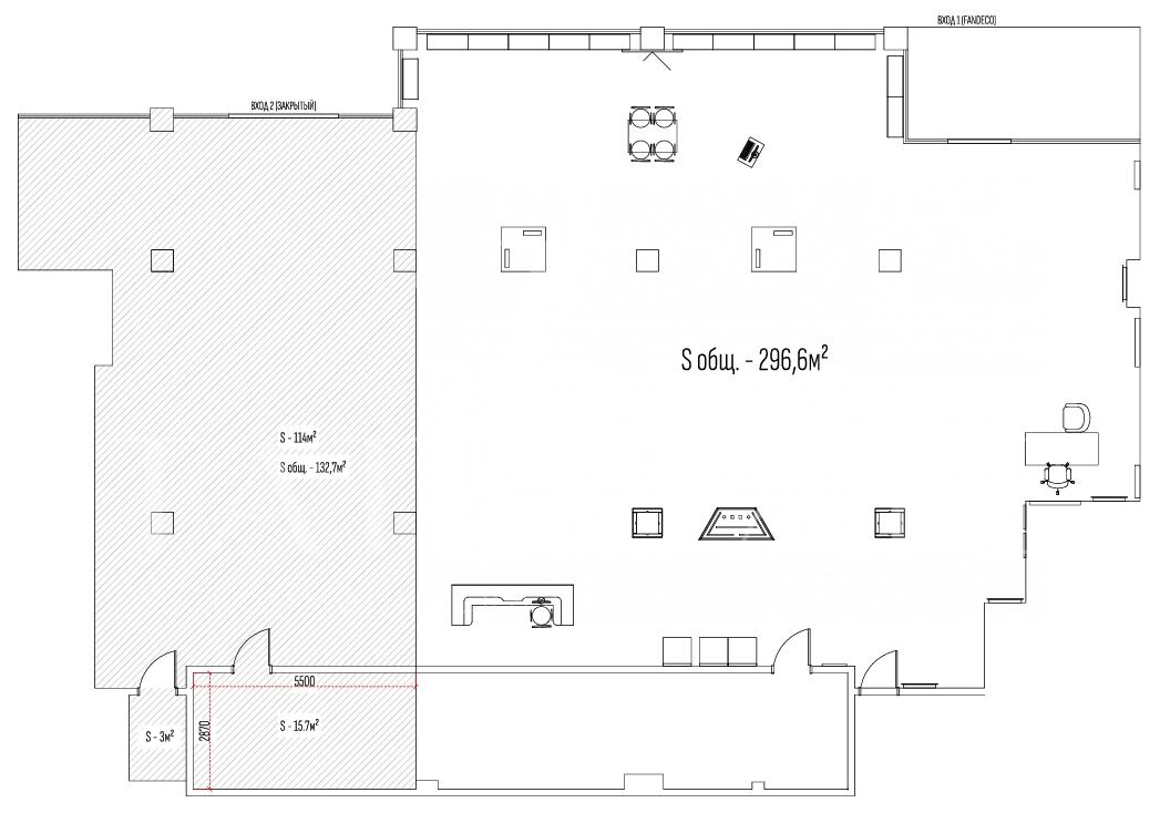
Общая площадь — 429 м2

Первый этаж пятиэтажного бизнес-центра

Чистовая отделка (готова к эксплуатации)

Высота потолков: 3,5 метра

Парковка:
На улице (свободный доступ к парковочным местам). За шлагбаумом парковка на 6-7 машин.

Планировка:
Открытая планировка помещений (гибкость размещения оборудования и мебели). Есть перегородка гипсокартон – на фото просматривается, ее можно демонтировать и впустить больше света.

Тип отопления:
Автономное отопление (поддерживает комфортную температуру круглый год)

Водоснабжение:
Централизованное водоснабжение (доступ к горячей и холодной воде круглосуточно)

Два санузла, два входа с фасада, 2 выхода во двор. Заведено 79 кВт.

Доступность входа:
Прямой вход с улицы, удобство и безопасность сотрудников и клиентов. Есть пандус

Право собственности:
Собственность арендодателя

Характеристика здания:
Современный бизнес-центр, который создает благоприятные условия для ведения бизнеса


Преимущества аренды данного помещения

- Просторная открытая планировка идеально подходит для организации рабочих зон различных форматов
- Возможность реализации любого формата коммерческой деятельности
- Отличная инфраструктура района, обеспечивающая удобный доступ к основным транспортным магистралям города
- Наличие централизованного водоснабжения и автономного отопления
- Чистая отделка позволяет оперативно приступить к работе после заключения договора аренды
- Удобство расположения на первом этаже бизнес-центра обеспечивает быстрое взаимодействие с клиентами и партнерами

Это помещение станет идеальным выбором для предпринимателей, стремящихся открыть или расширить собственное дело в одном из наиболее перспективных районов Казани!
Подробнее

Характеристики

  • Тип недвижимости Коммерческая
  • Населенный пункт Казань
  • Район Советский
  • Адрес улица Гвардейская, д.54е
  • Стоимость заМесяц
  • Вид объекта Помещение свободного назначения
  • Тип аренды (прямая/субаренда) Прямая
  • Общая площадь 429.3 м²
  • Этаж 1
  • Этажность дома 5
  • Отопление Автономное
  • Лифт нет
  • Вход С улицы
  • Планировка Открытая
  • Отделка Чистовая
  • Тип здания Бизнес-центр
  • Тип парковки На улице
  • Право собственности Собственник
  • Удаленность от дороги Первая линия
  • Статус земли Поселений
  • Высота потолка в метрах 3.5
Задать вопрос


Вас также может заинтересовать:
5
ПСН 434 кв в центре со своей парковкой
Казань, улица Чернышевского, д.29а
Вахитовский
781 200 / месяц
  • Вид объекта:Помещение свободного назначения
  • Тип аренды (прямая/субаренда):Прямая
  • Общая площадь:434 м²
  • Этаж:2
25
Производственно-складское помещение 1400 кв.м.
Казань, Республика Татарстан (Татарстан), Зеленодольский район, Осиновское сельское поселение, территория Промышленная Площадка Индустриальный Парк М7

980 000 / месяц
  • Вид объекта:Производственное помещение
  • Тип аренды (прямая/субаренда):Прямая
  • Общая площадь:1400 м²
  • Этаж:1
9
Помещение свободного назначения 564.5 м²
Казань, улица Танковая, д.2
Приволжский
846 000 / месяц
  • Вид объекта:Помещение свободного назначения
  • Тип аренды (прямая/субаренда):Прямая
  • Общая площадь:564.5 м²
  • Этаж:1

Мы используем файлы cookie, чтобы обеспечить вам наилучший доступ к нашему веб-сайту

Скопировано