Казань, ул. Тукая 77
Пн-пт с 08:00 до 21:00

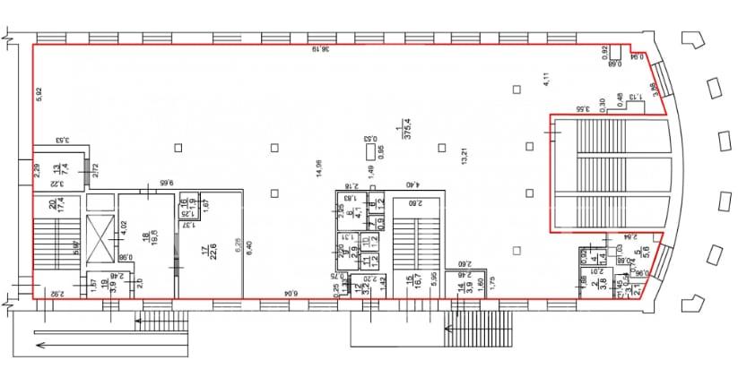
Первый этаж в БЦ 410 кв.м.опенспейс ID: J10358

Казань, Вахитовский, улица Лево-Булачная, д.30
Площадь 410 м²
Этаж 5 из 6
Материал Бизнес-центр
1 025 000 / месяц
2 500 /м²
QR
Ссылка на объект

Описание

Сдается помещение свободного назначения по адресу: ул. Лево-Булачная, 30. В хорошем состоянии. Помещение находится на 1 этаже. Планировка открытая. В помещении:
Телефон
Электричество
Отопление
Проведено водоснабжение
Имеется лифт
Запасной вход
Доступ 24 часа
Коммунальные платежи не входят в стоимость.
Располагается на первой линии от дороги.
Есть парковочные места, количество предоставляемых мест обсуждается индивидуально.
Высокий автомобильный и высокий пешеходный трафик.
Рядом улицы: Чернышевского, Московская, Право-Булачная .

Характеристики

  • Тип недвижимости Коммерческая
  • Населенный пункт Казань
  • Район Вахитовский
  • Адрес улица Лево-Булачная, д.30
  • Стоимость заМесяц
  • Вид объекта Помещение свободного назначения
  • Обязательно для заполнения: доп. 2 категории Офис, Свободного назначения
  • Тип аренды (прямая/субаренда) Прямая
  • Общая площадь 410 м²
  • Этаж 5
  • Этажность дома 6
  • Отопление Центральное
  • Водоснабжение да
  • Лифт да
  • Вход С улицы
  • Планировка Кабинетная
  • Отделка Офисная
  • Тип здания Бизнес-центр
  • Тип парковки На улице
  • Право собственности Посредник
  • Удаленность от дороги Первая линия
  • Статус земли Участок промышленности, транспорта, связи и иного не сельхоз. назначения
  • Высота потолка в метрах 3
Задать вопрос


Вас также может заинтересовать:
10
Сдается ОСЗ 380 кв в центре
Казань

945 000 / месяц
  • Вид объекта:Помещение свободного назначения
  • Тип аренды (прямая/субаренда):Прямая
  • Общая площадь:378 м²
  • Этаж:2
20
Сдается 400 кв.м с Ремонтом в торгово-офисном здании класса А
Казань, улица Гаврилова, д.3
Ново-Савиновский
840 000 / месяц
  • Вид объекта:Помещение свободного назначения
  • Тип аренды (прямая/субаренда):Прямая
  • Общая площадь:400 м²
  • Этаж:3
25
Производственно-складское помещение 1400 кв.м.
Казань, Республика Татарстан (Татарстан), Зеленодольский район, Осиновское сельское поселение, территория Промышленная Площадка Индустриальный Парк М7

980 000 / месяц
  • Вид объекта:Производственное помещение
  • Тип аренды (прямая/субаренда):Прямая
  • Общая площадь:1400 м²
  • Этаж:1

Мы используем файлы cookie, чтобы обеспечить вам наилучший доступ к нашему веб-сайту

Скопировано