Казань, ул. Тукая 77
Пн-пт с 08:00 до 21:00

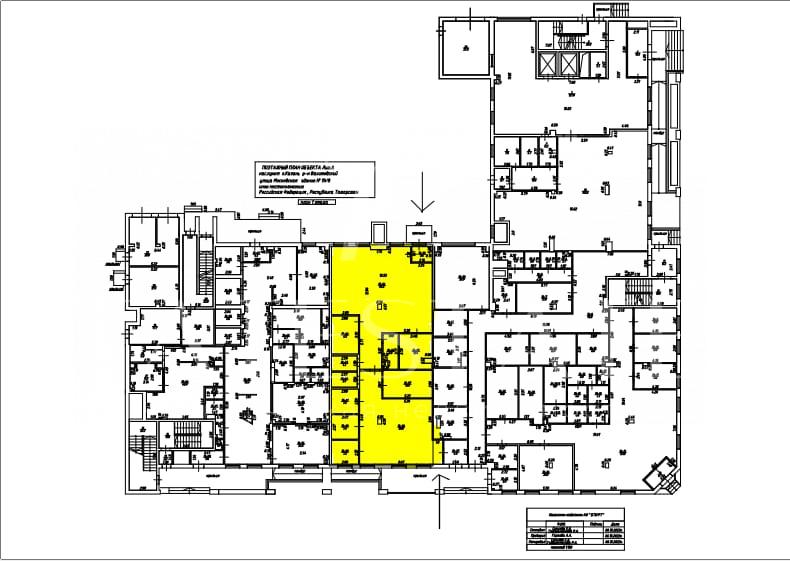
Офис 237 кв на 1 этаже БЦ ID: J10349

Казань, Вахитовский, улица Московская, д.19/8
Площадь 237 м²
Этаж 1 из 5
Материал Бизнес-центр
948 000 / месяц
4 000 /м²
QR
Ссылка на объект

Описание

Сдается офисное помещение смешанной планировки на первом этаже Бизнес центра. Опенспейс и несколько кабинетов. Свой вход с улицы. Здание находится в центре города! В шаговой доступности хорошая транспортная развязка, так же метро "Кремлевская". Много точек общепита. Своя парковка как наземная так и двух уровневый подземный паркинг, (15 тыс. руб. за машиноместо) В здании: Круглосуточная охрана, интернет, приточно-вытяжная вентиляция, пандус, есть возможность повесить вывеску, 2 Лифта, сплит система с охлаждением, На входе ресепшн, кофейня. Бизнес центр класса А.
Ку и уборка оплачиваются отдельно.
Остались вопросы? звоните, оперативно организуем показ.

Характеристики

  • Тип недвижимости Коммерческая
  • Населенный пункт Казань
  • Район Вахитовский
  • Адрес улица Московская, д.19/8
  • Стоимость заМесяц
  • Вид объекта Офисное помещение
  • Тип аренды (прямая/субаренда) Прямая
  • Общая площадь 237 м²
  • Этаж 1
  • Этажность дома 5
  • Лифт да
  • Вход С улицы
  • Планировка Кабинетная
  • Отделка Чистовая
  • Тип здания Бизнес-центр
  • Тип парковки На улице
  • Право собственности Собственник
  • Статус земли Участок промышленности, транспорта, связи и иного не сельхоз. назначения
  • Высота потолка в метрах 3
Задать вопрос


Вас также может заинтересовать:
5
ПСН 434 кв в центре со своей парковкой
Казань, улица Чернышевского, д.29а
Вахитовский
781 200 / месяц
  • Вид объекта:Помещение свободного назначения
  • Тип аренды (прямая/субаренда):Прямая
  • Общая площадь:434 м²
  • Этаж:2
20
Сдается 400 кв.м с Ремонтом в торгово-офисном здании класса А
Казань, улица Гаврилова, д.3
Ново-Савиновский
840 000 / месяц
  • Вид объекта:Помещение свободного назначения
  • Тип аренды (прямая/субаренда):Прямая
  • Общая площадь:400 м²
  • Этаж:3
18
Первая линия
Много кВт-производство
Теплый склад на пандусе с высотой 10м на Технической
Казань, улица Тульская, д.57г
Приволжский
1 050 000 / месяц
  • Вид объекта:Складское помещение
  • Тип аренды (прямая/субаренда):Прямая
  • Общая площадь:1050 м²
  • Этаж:1

Мы используем файлы cookie, чтобы обеспечить вам наилучший доступ к нашему веб-сайту

Скопировано