Казань, ул. Тукая 77
Пн-пт с 08:00 до 21:00

Производственно-складской комплекс 9000 кв.м. с НДС! ID: J10326

Осиново, Республика Татарстан (Татарстан), Зеленодольский район, Осиновское сельское поселение, посёлок Новониколаевский, территория Промышленная площадка N1, 1/1
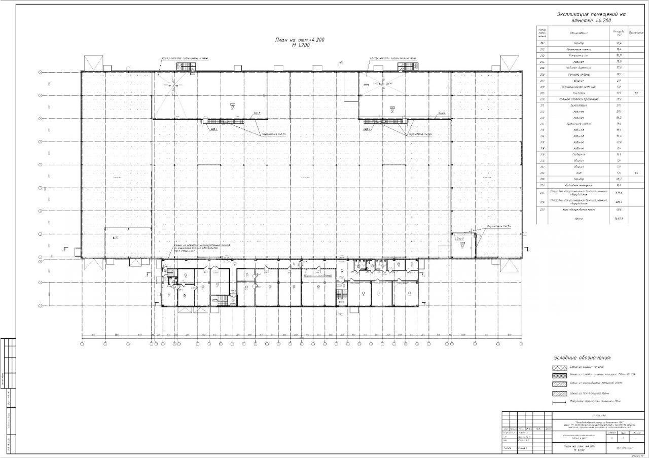
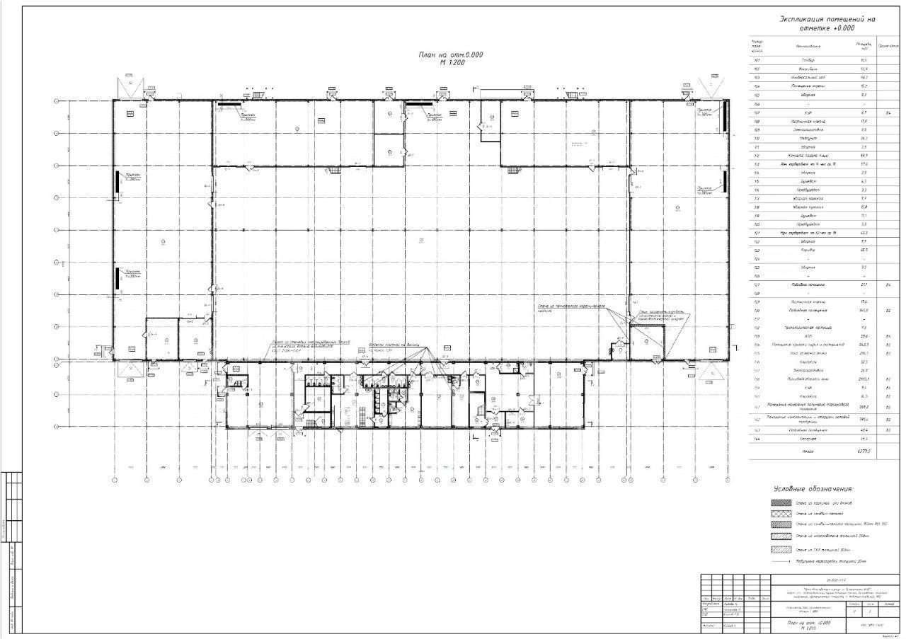
Площадь 9000 м²
Этаж 1 из 1
Материал Другой
10 800 000 / месяц
1 200 /м²
Мирослав Федотов Мирослав Федотов
Специалист по коммерческой недвижимости
Показать телефон miroslav@tat-estate.ru
QR
Ссылка на объект

Описание

Предложение от собственника!

Предлагаем производственно-складской комплекс 9 000 кв.м.

Введено в эксплуатацию в 2024г.

Ставка аренды 1 200, НДС в цене.

Также рассматривается вариант продажи этого комплекса, ставка 120 тыс./кв.м.

Общaя площaдь учаcткa: 24 083 кв.м.
Площaдь acфальтирования: 8844 кв.м.
Пaрковка на 70 машиномест: 837 кв.м.

Материал стен: Сендвич панель 150 мм
Кровля: Утеплитель 200 мм, мембрана

- доступ 24/7;
- мощность 500 квт. с возможностью увеличения, есть 380V;
- полы антипыль 5т.;
- коммунальные платежи оплачиваются отдельно;
- высота потолка основное помещение 8.6м.;
- кран балка на 5т.;
- индивидуальное газовое отопление;
- водоснабжение центральное;
- емкость канализации 30 м3;
- ливневая канализация;
- ворота 4200х4500 (ШхВ) - 4 шт.;
- высота потолка АБК, м: 2,7-3,5м.;
- огороженная территория;
- охрана;
- пожарная сигнализация;
- автоматическое пожаротушение;
- система вентиляции/дымоудаления;
- интернет оптика Ростелеком, есть Wi-Fi;
- видеонаблюдение 30 камер;
- сан.узлы, душевые. мокрые точки, раздевалки;
- комната приема пищи, мед.кабинет, серверная.
Подробнее

Характеристики

  • Тип недвижимости Коммерческая
  • Населенный пункт Осиново
  • Адрес Республика Татарстан (Татарстан), Зеленодольский район, Осиновское сельское поселение, посёлок Новониколаевский, территория Промышленная площадка N1, 1/1
  • Стоимость заМесяц
  • Вид объекта Производственное помещение
  • Обязательно для заполнения: доп. 2 категории Свободного назначения, Производство
  • Тип аренды (прямая/субаренда) Прямая
  • Общая площадь 9000 м²
  • Этаж 1
  • Этажность дома 1
  • Отопление Автономное
  • Водоснабжение да
  • Лифт нет
  • Вход С улицы
  • Планировка Открытая
  • Отделка Чистовая
  • Тип здания Другой
  • Тип парковки На улице
  • Право собственности Собственник
  • Статус земли Участок промышленности, транспорта, связи и иного не сельхоз. назначения
  • Высота потолка в метрах 8.6
Задать вопрос

Мы используем файлы cookie, чтобы обеспечить вам наилучший доступ к нашему веб-сайту

Скопировано