Казань, ул. Тукая 77
Пн-пт с 08:00 до 21:00

ПСН 121 на траффике в центре ID: J10268

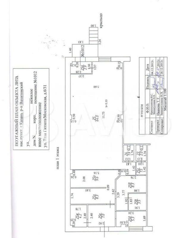
Казань, Вахитовский, улица Тази Гиззата, д.6/31
Площадь 121 м²
Этаж 1 из 4
Материал Бизнес-центр
215 000 / месяц
1 776 /м²
QR
Ссылка на объект

Описание

Предлагаем помещение в центре города на пересечении Тази Гиззата и Московской, ВЫСОКИЙ ТРАФФИК!

- доступ 24/7;
- 1я линия;
- 35 КВТ
- есть возможность разместить вывеску;
- центральные коммуникации;
- есть возможность установки кондиционеров и вытяжки;
- свой сан.узел;
- кухонная зона, мокрая точка;
- парковка стихийная во дворе, и также муниципальная;
- 2 выхода - один с первой линии, а второй со двора
- оплата коммунальных услуг оплачивается отдельно.

Имеется запасной выход на задний двор. Соответствует всем нормам. Парковка вдоль здания.
Рассмотрим офис, представительство, общепит, магазин, аптека, мед. учреждение

Характеристики

  • Тип недвижимости Коммерческая
  • Населенный пункт Казань
  • Район Вахитовский
  • Адрес улица Тази Гиззата, д.6/31
  • Стоимость заМесяц
  • Вид объекта Помещение свободного назначения
  • Обязательно для заполнения: доп. 2 категории Офис, Торговое помещение
  • Тип аренды (прямая/субаренда) Прямая
  • Общая площадь 121 м²
  • Этаж 1
  • Этажность дома 4
  • Отопление Центральное
  • Лифт нет
  • Вход С улицы
  • Планировка Открытая
  • Отделка Чистовая
  • Тип здания Бизнес-центр
  • Тип парковки На улице
  • Право собственности Собственник
  • Удаленность от дороги Первая линия
  • Статус земли Участок промышленности, транспорта, связи и иного не сельхоз. назначения
  • Высота потолка в метрах 3
Задать вопрос


Вас также может заинтересовать:
6
Помещение свободного назначения 140 кв.м.
Казань, улица Крутовская, д.41
Приволжский
168 000 / месяц
  • Вид объекта:Помещение свободного назначения
  • Тип аренды (прямая/субаренда):Прямая
  • Этаж:1
  • Этажность дома:2
11
Общепит-кафе
Отдельный вход
Помещение свободного назначения, 164 м²
Казань, улица Ярдем, д.25
Приволжский
188 600 / месяц
  • Вид объекта:Помещение свободного назначения
  • Тип аренды (прямая/субаренда):Прямая
  • Этаж:1
  • Этажность дома:9
14
Отдельный вход
24/7 доступ
Помещение свободного назначения 200 м²
Казань, улица Гвардейская, д.56А
Советский
252 000 / месяц
  • Вид объекта:Помещение свободного назначения
  • Тип аренды (прямая/субаренда):Прямая
  • Этаж:-1
  • Этажность дома:2

Мы используем файлы cookie, чтобы обеспечить вам наилучший доступ к нашему веб-сайту

Скопировано