Казань, ул. Тукая 77
Пн-пт с 08:00 до 21:00

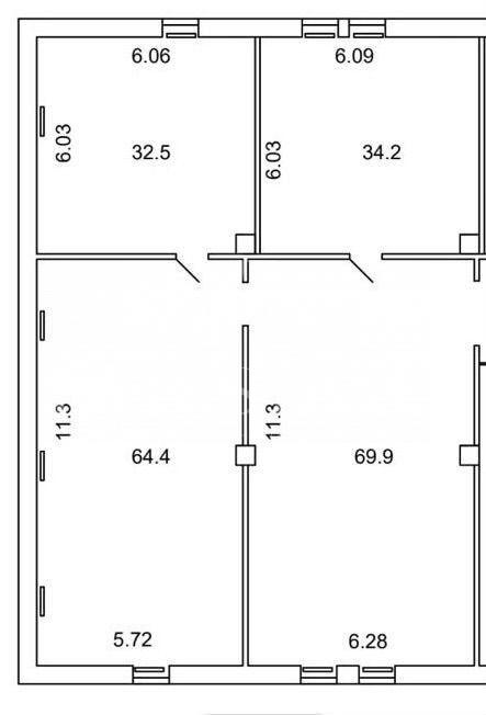
Помещение свободного назначения ID: J10176

Казань, Приволжский, улица Магистральная, д.59/1
Площадь 200 м²
Этаж 2 из 2
Материал Административное здание
160 000 / месяц
800 /м²
QR
Ссылка на объект

Описание

Помещение на втором этаже под офис, склад ,производство пищевое.
Есть большая бесплатная парковка.
Свой вход на этаж.
Есть офисы от 20 кв. до 150кв.

Характеристики

  • Тип недвижимости Коммерческая
  • Населенный пункт Казань
  • Район Приволжский
  • Адрес улица Магистральная, д.59/1
  • Стоимость заМесяц
  • Вид объекта Помещение свободного назначения
  • Обязательно для заполнения: доп. 2 категории Склад, Производство
  • Тип аренды (прямая/субаренда) Субаренда
  • Общая площадь 200 м²
  • Этаж 2
  • Этажность дома 2
  • Отопление Центральное
  • Лифт нет
  • Вход Со двора
  • Планировка Кабинетная
  • Отделка Чистовая
  • Тип здания Административное здание
  • Тип парковки На улице
  • Право собственности Собственник
  • Удаленность от дороги Первая линия
  • Высота потолка в метрах 3
Задать вопрос


Вас также может заинтересовать:
14
Оборудование входит в стоимость
Казань, улица Фатыха Амирхана, д.18/41
Ново-Савиновский
165 000 / месяц
  • Вид объекта:Помещение свободного назначения
  • Тип аренды (прямая/субаренда):Прямая
  • Общая площадь:75 м²
  • Этаж:1
11
Общепит-кафе
Отдельный вход
Помещение на 1 линии 77 кв.м. с отд.входом
Казань, проспект Победы, д.152/33
Советский
154 000 / месяц
  • Вид объекта:Помещение свободного назначения
  • Тип аренды (прямая/субаренда):Прямая
  • Общая площадь:77 м²
  • Этаж:1
27
Отдельный вход
24/7 доступ
Помещение свободного назначения 158,4 кв.м.
Казань, проспект Победы, д.230
Советский
200 000 / месяц
  • Вид объекта:Помещение свободного назначения
  • Тип аренды (прямая/субаренда):Прямая
  • Общая площадь:158 м²
  • Этаж:1

Мы используем файлы cookie, чтобы обеспечить вам наилучший доступ к нашему веб-сайту

Скопировано